1 Jetty Road Marion Bay SA 5575
For Sale $1,050,000 to $1,150,000
- Property Type Other (Residential)
- Land area approx 1593sqm
- Floor area approx 255sqm
- Region Yorke and Mid North
- Locality Yorke Peninsula
- Uncovered Carspaces 2
- Carports 6
- Garages 2
Amazing Seaside Location * Beachfront * Opposite the Taven & General Store * Offers Presented
Buy your Lifestyle Business or Home on 1593m2
Book your viewing now ** Self Management or Hire a Manager. Is The Price Right for you.
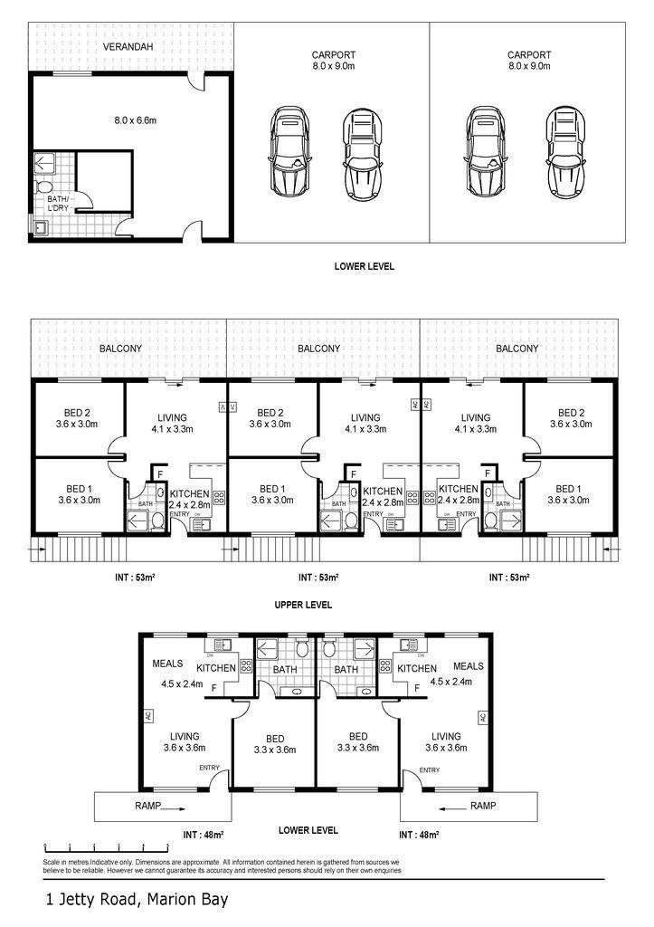
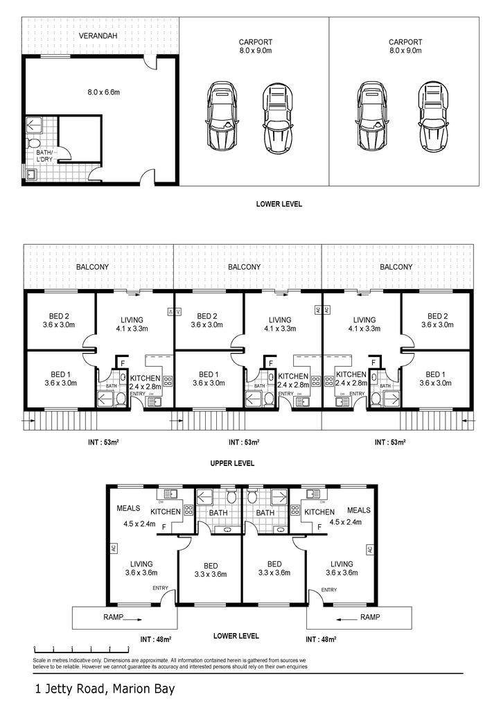
5 apartments self-contained apartments with well-maintained improvements including: (8 Bedrooms, 5 Bathrooms)
Located in one on the country's most desirable coastal vacation destinations * Rates approx $2400pa
Marion Bay Seaside boutique holiday apartments are situated on the foreshore, overlooking the Jetty, Boat Ramp & the Bay with views to Kangaroo Island on a clear day. The property is well suited to both couples & families, just a minutes' walk to the beach, making it ideal for the coastal getaway.
Option to convert downstairs to Managers Apartment;
• 3 x 2 bedroom & 1 bathroom Ocean View Apartments with private balconies & BBQ's
• 2 x 1 bedroom & 1 bathroom ground level apartments
The apartment's were renovated in June, July & August 2022. The renovations and new furniture etc costs exceeded $260,000.00.
The Peak 2 bed-room nightly rent is $250; Low period, 2 bed-room nightly rent is $180
The Peak 1 bed-room nightly rent is $200; Low period, 1 bed-room nightly rent is $150
• Reverse cycle air conditioning • Colour televisions
• Kitchens with full size stove/oven, microwave & fridge/freezer
• Magnificent views over Marion Bay
• Onsite Gas BBQ
• Excellent Car Parking
Built in 1995 the business has been running for over 25 years. The Marion Bay Seaside Apartments has always enjoyed a high occupancy rates & has been built on a repeat & referral business.
The 1593sqm allotment offers the opportunity to capitalised on its main street frontage with the potential to build further accommodation (stcc). External improvements include good rainwater, solar & a large storage shed.
Run your own Business Earn Money or just share it with your family *
LOCATION
The Yorke Peninsula is located north-west of Adelaide in South Australia, between Spencer Gulf on the west & Gulf St Vincent on the east
Sitting on the doorstep of Innes National Park, Marion Bay is an idyllic coastal town popular for swimming, fishing and surfing. With a sheltered swimming beach on one side and a surf beach on the other, it is the perfect spot for your salt water fix. The town is also a popular fishing destination with plenty of spots to cast a line and try your luck beach, jetty, rock, and surf fishing. After a day spent beachside, quieten your rumbling stomach at the Marion Bay Tavern where you will find all the local seafood staples, paired with a fine wine bar and wood fired pizza menu.
INDUSTRY & MARKET
Currently the Yorke Peninsula contributes $220million to the December 2019 South Australian expenditure of $8.1 billion.
The most popular activity when coming to the Yorke Peninsula is to go to the beach, eat out or dine at a restaurant or café. Other popular activities include fishing, bushwalking, & visiting the National Parks.
CUSTOMER BASE
99% of visitors to the area are domestic visitors & 1% are international visitors.
Domestically, 89% of visitors are from within the state compared to 11 per cent from interstate.
88% of visitors to the Yorke Peninsula are leisure visitors (holiday & VFR).
Email a friend
You must be logged in and have a verified email address to use this feature.
Call Agent
-
Colleen MartinUrban & Rural Partners

