105S Derby Street Walcha NSW 2354
For Sale $850,000
- Property Type Lifestyle
- Land area approx 11.84ac
- Region Northern Inland
- Locality Walcha
- Garages 4
Riverfront Lifestyle Acreage | Renovated Home | Equine Facilities | 12 Acres in Town
Phone enquiries - please call 1300 594 794 and quote property ID 38168.
Arguably one of the best small acreages available.
Initial agreement by council for a subdivision if required.
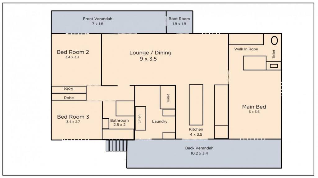
Positioned on the edge of town yet immersed in rural serenity, this rare 12-acre lifestyle property offers the perfect blend of space, comfort, and convenience. Beautifully renovated throughout, the charming three-bedroom home is ideal for horse enthusiasts, hobby farmers, or those seeking a private country retreat with town amenities just 500m away.
Set on fertile Apsley River flats with a coveted irrigation license, the land is fully fenced and thoughtfully laid out with paddocks, stables, multiple sheds, and a powered workshop. The home is move-in ready with modern finishes, generous living areas, and a spacious alfresco zone perfect for year-round entertaining.
Key Features:
• Renovated 3-bedroom home with built-ins and fresh timber-look flooring
• Modern bathroom with separate bath, plus two toilets
• Stylish kitchen with induction cooktop, dishwasher, breakfast bar & ample storage
• Cozy lounge with reverse-cycle air conditioning & wood heater
• Expansive undercover outdoor entertaining with weatherproof clear blinds
• 5-bay shed with 2-bay powered workshop, additional carport for boat/caravan, and storage shed
• 5 stables, fenced paddocks, laneway system & 4 animal shelters
• 12 acres of productive river flats with unmetered irrigation license from the Apsley River
• Fully fenced house yard with low-maintenance landscaping
• NBN connected directly to the home for fast internet
• School bus stop at the front gate, 500m to Walcha town centre
Whether you're downsizing acreage, upgrading your lifestyle, or launching an equine or hobby venture, this exceptional property delivers rare flexibility, rural charm, and modern liveability all within walking distance to town.
Enquire to arrange your private inspection, don’t miss this unique opportunity.
DISCLAIMER While proudly assisting home owners to sell since 1999, No Agent Property takes every care to verify the accuracy of the details in this advertisement, but the correctness cannot be guaranteed.
Property Features
- Air Conditioning
- Balcony
- Broadband
- Deck
- Dishwasher
- Fully Fenced
- Open Fireplace
- Pet friendly
- Remote Controlled Garage Door
- Secure Parking
- Shed
- Workshop
Email a friend
You must be logged in and have a verified email address to use this feature.
Call Agent
-
No Agent Property - NSWNo Agent Property

