10b Union Street Kilmore VIC 3764
For Sale $535,000 - $565,000
Savvy Low Maintenance Investment or New Start Home
Phone enquiries - please call 1300 594 794 and quote property ID 38597.
Discover the ultimate in modern, convenient living at this brand-new, meticulously finished home. This is a rare opportunity to purchase DIRECTLY FROM THE OWNER, allowing you to benefit from a price that has been reduced by the traditional middleman (agent) fees! Get superior quality without the unnecessary extra cost. Also no shared body corporate or strata fees here.
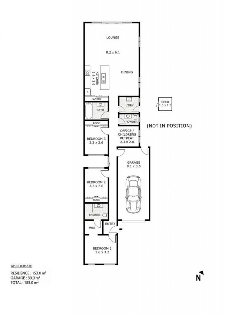
Architecturally designed to maximize light and space, the home boasts soaring 2.7-meter high ceilings and superior year-round comfort with double-glazed windows on every room. This three-bedroom, two-bathroom home is built to a high specification and sits on its own title, promising a low-maintenance, fuss-free existence.
The property includes a dedicated, already permitted space for a carport (STCA), allowing the new owner to easily add covered parking and increase the home's value.
The convenience factor is paramount. Located mere steps from the heart of Kilmore, you have immediate access to the bustling main shopping street and all public transport options, making daily life incredibly easy.
Don't miss the chance to secure this flawless, feature-packed home and maximize your savings by buying directly.
DISCLAIMER While proudly assisting home owners to sell since 1999, No Agent Property takes every care to verify the accuracy of the details in this advertisement, but the correctness cannot be guaranteed.
Property Features
- Air Conditioning
- Broadband
- Courtyard
- Dishwasher
- Fully Fenced
- Outdoor Entertaining Area
- Pet friendly
- Remote Controlled Garage Door
- Secure Parking
- Shed
Email a friend
You must be logged in and have a verified email address to use this feature.
Call Agent
-
No Agent Property - VICNo Agent Property

