12 Curlew Street Meringandan West QLD 4352
For Sale Offers Above
- Property Type House
- Land area approx 2254sqm
- Floor area approx 105sqm
- Region Darling Downs and South West
- Locality Toowoomba
- Garages 2
Spacious Family Living with Light Filled Open Plan Design
Phone enquiries - please call 1300 594 794 and quote property ID 39899.
Spacious, light filled living designed for comfort and connection.
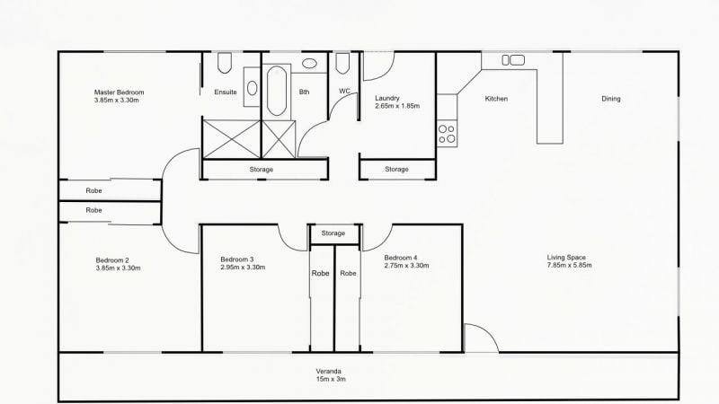
This welcoming home offers a generous open-plan layout where the kitchen, dining and living areas flow together effortlessly, creating a space that feels both practical and inviting for everyday living.
Large windows fill the home with natural light, while warm timber flooring and neutral tones create a relaxed atmosphere throughout.
At the heart of the home, the kitchen overlooks the dining and living areas, making it easy to stay connected while cooking or entertaining. The adjoining dining space provides the perfect setting for family meals, while the comfortable lounge area offers a place to unwind.
Step outside to the expansive covered veranda, ideal for outdoor entertaining, relaxing with friends or enjoying quiet mornings.
The home features 4 bedrooms, well-appointed bathrooms, a separate laundry and multiple cupboard space for lots of storage.
DISCLAIMER While proudly assisting home owners to sell since 1999, No Agent Property takes every care to verify the accuracy of the details in this advertisement, but the correctness cannot be guaranteed.
Property Features
- Air Conditioning
- Fully Fenced
- Outdoor Entertaining Area
- Pet friendly
- Secure Parking
- Solar Hot Water
- Solar Panels
- Workshop
Email a friend
You must be logged in and have a verified email address to use this feature.
Call Agent
-
No Agent Property - QLDNo Agent Property

