13/9 Elite Way Carrum Downs VIC 3201
For Sale Contact Paul Johnston 0419 582 035
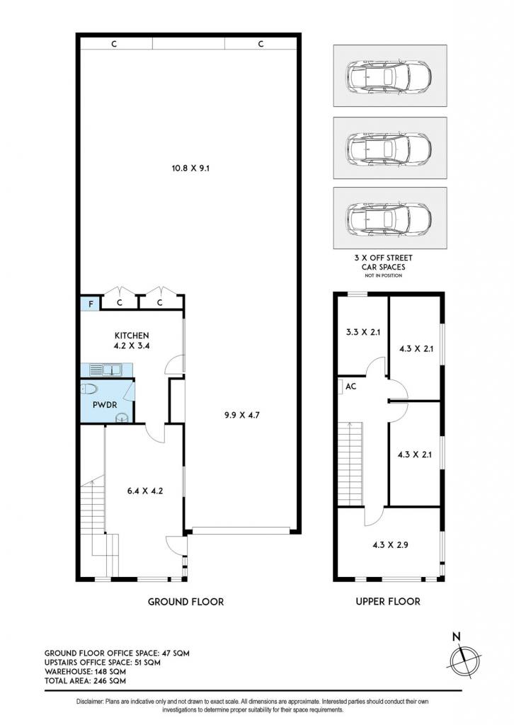
- Property Type Industrial/Warehouse
- Floor area approx 246sqm
- Region Southern Melbourne
- Locality Frankston
Clean Factory With Extensive OFFICES - Make An Offer Leasing Incentives Available
Make An Offer Leasing Incentives Available!
Approx 246sqm (148sqm Warehouse / 98sqm Two Level Office Space)
* Clean As A Whistle
*Ready to move in straight away
*Includes 4 upstairs offices
*Separate kitchen
*Security system including bollards
*Looks great from the street
Total Area 246sqm*
148sqm Warehouse*
98sqm Two Level Office Space*
Quality Office
Reception Area
4 Private Office Spaces – Upstairs
Venetian Blinds
Reverse Heat/Air to second level offices
3 Phase Power
Electric Roller Door (with a 4.5mtr approx. clearance)
2 large Bollards (for added security)
Alarm System
Work Bench across back wall of factory
Plenty of storage cupboards in factory
Kitchen area with lockable entry to factory
3 Car Spaces
Close to the freeway and transport connections.
* Approximately
Email a friend
You must be logged in and have a verified email address to use this feature.
Call Agent
-
Paul JohnstonHodges Mentone
Call Agent
-
Mark PearmanHodges Mentone

