14 Hammond Court Prospect Vale TAS 7250
For Sale Offers Above $929,000
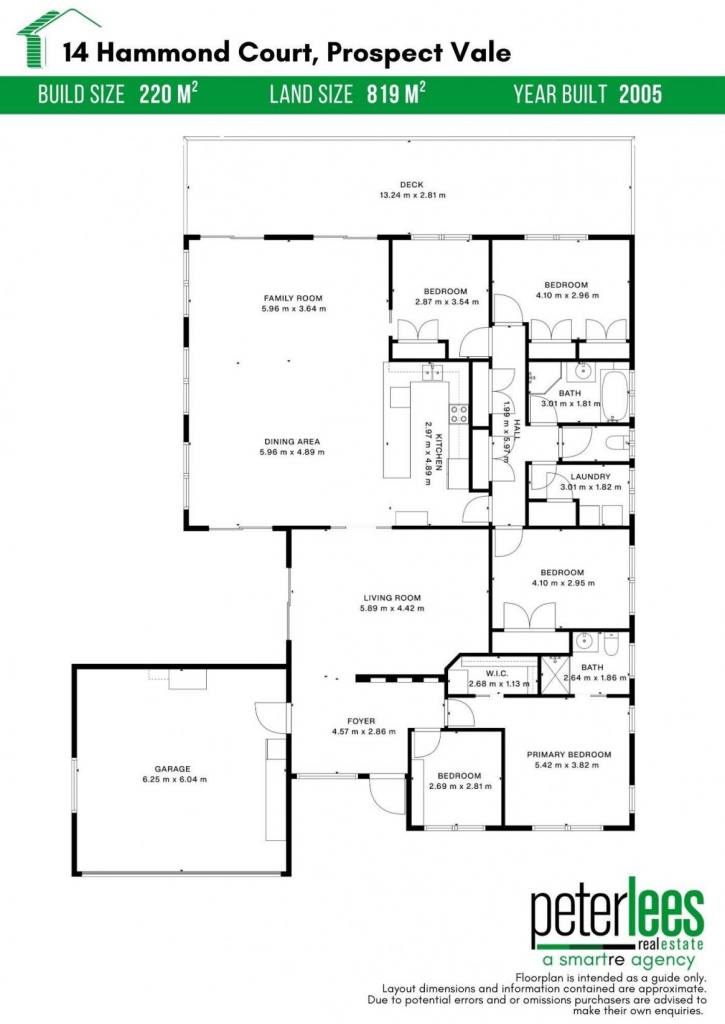
- Property Type House
- Land area approx 819sqm
- Floor area approx 220sqm
- Council Rates $1829/year
- Water Rates $297/quarter
- Region Tasmania
- Locality Meander Valley
- Uncovered Carspaces 2
Peaceful Living in a Highly Desirable Position
Tucked away in a quiet cul-de-sac, this stylish and well-maintained home delivers relaxed living, combining generous space, comfort, and low-maintenance, in a highly sought-after location.
Capturing natural light throughout the day, the home features generous living areas that enjoy a calm and peaceful outlook over the rear of the property, creating a relaxing atmosphere to unwind or entertain. With no direct rear neighbours, the backyard enjoys a private, leafy outlook offering a tranquil backdrop of birdlife and greenery that enhances the home's sense of privacy and calm.
The versatile floor plan offers four bedrooms plus a study or nursery, ideal for growing families or those working from home. The interior has been thoughtfully updated and well cared for, allowing you to move in and enjoy immediately.
Step outside to a great sized deck and fire pit area perfect for entertaining, along with an additional alfresco area that can easily double as extra space for a boat, caravan, trailer, or additional vehicles. The easy-care grounds ensure you can spend more time enjoying the home and less time maintaining it.
Completing the package is a double garage with convenient internal access, adding both security and practicality.
With nearby walking tracks to explore the surrounding area, and located close to local schools, public transport, and a range of conveniences in Prospect Vale, this property offers peaceful living and everyday convenience.
*Peter Lees Real Estate has used a variety of sources to obtain information relating to this property. We believe all are reliable sources and have no reason to doubt the accuracy of the information, however we cannot guarantee it. Prospective purchasers are advised to make their own enquiries.
Boundary lines are indicative only.
Property Features
- Outdoor Entertaining Area
- Lock Up Garage
- Heating
- Car Parking - Surface
- Air Conditioning
Email a friend
You must be logged in and have a verified email address to use this feature.
Call Agent
-
Larrisa BrickhillPeter Lees Real Estate

