143 Osborne Street Flora Hill VIC 3550
For Sale $890,000 - $940,000
Under Offer- Property Type House
- Land area approx 1503sqm
- Region Loddon Mallee
- Locality Greater Bendigo
- Ensuite 1
- Garages 2
- Toilets 3
Discover Something Special in Flora Hill
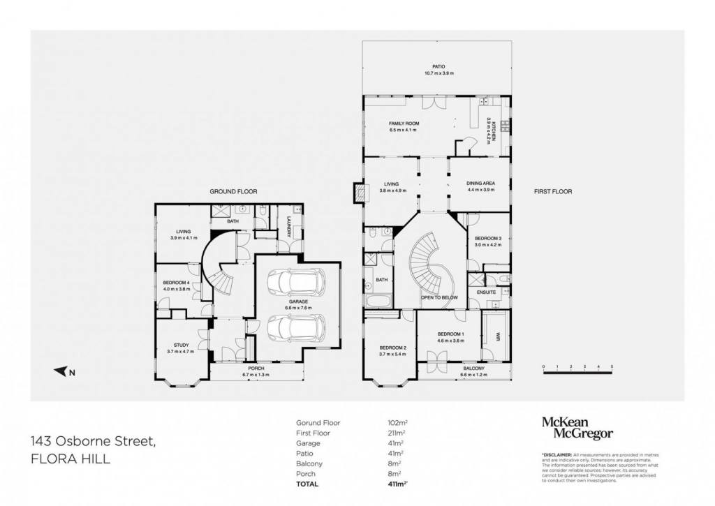
Perched high among the native treetops of sought-after Flora Hill, 143 Osborne Street is a striking two-storey Russell Parsons–built residence that delivers space, character and an inspired connection to its natural surroundings. Recently refreshed and beautifully presented, this unique family home offers an exceptional lifestyle only moments from schools, parks, shops and Bendigo’s vibrant city centre.
From the moment you enter, the home’s individuality is immediately evident. A grand winding staircase takes pride of place in the foyer, setting the tone for the thoughtfully designed floor plan that unfolds across two spacious levels. To the left, a generous study or sitting room provides the perfect retreat for home-based professionals or those seeking a quiet relaxing space.
The lower level also hosts a large bedroom with its own private living area, ideal for guests, extended family or teen independence. A convenient Jack-and-Jill bathroom, substantial laundry, excellent storage solutions and direct internal access to the two-car garage complete the ground floor.
Upstairs, the master suite is a true sanctuary. Featuring a walk-in robe, ensuite, and direct access to the elevated balcony, it captures tranquil views across the inground pool and surrounding bushland – the perfect place to unwind in the evening. Two further bedrooms, both with built-in robes, are serviced by a spacious family bathroom and a separate powder room.
Multiple living zones ensure comfort and versatility for families of all sizes. Enjoy cosy evenings in the formal sitting room with open fireplace, host special occasions in the formal dining area, or gather in the open-plan kitchen and living zone, which also accommodates additional dining if desired. The fully equipped kitchen includes a 900mm electric oven, 5-burner gas cooktop, stainless rangehood and dishwasher – ready for the home chef.
The home has been beautifully rejuvenated with fresh paint throughout, polished timber floors and modern LED lighting, while ducted gas heating and evaporative cooling ensure year-round climate comfort.
Outdoors, the appeal continues with a stunning large inground pool set against a private, native backdrop – an idyllic place for summer living and entertaining. The double garage also offers extra space for storage or the addition of workbenches.
A rare offering in a tightly held pocket, 143 Osborne Street blends architectural character with modern practicality in a serene, elevated setting. This is a home designed for families who appreciate space, style and a peaceful connection to nature.
Disclaimer: All property measurements and information has been provided as honestly and accurately as possible by McKean McGregor Real Estate Pty Ltd. Some images may feature virtual staging. Some information is relied upon from third parties. Title information and further property details can be obtained from the Vendor Statement. We advise you to carry out your own due diligence to confirm the accuracy of the information provided in this advertisement and obtain professional advice if necessary. McKean McGregor Real Estate Pty Ltd do not accept responsibility or liability for any inaccuracies.
Property Features
- Balcony
- Built In Wardrobes
- Deck
- Dishwasher
- Ducted Cooling
- Ducted Heating
- Evaporative Cooling
- Floorboards
- Fully Fenced
- In Ground Pool
- Inside Spa
- Open Fireplace
- Remote Controlled Garage Door
- Secure Parking
Email a friend
You must be logged in and have a verified email address to use this feature.
Call Agent
-
Adam HuttonMcKean McGregor

