15 Boston Quays Mindarie WA 6030
For Lease TO BE NEGOTIATED
- Property Type Hotel/Leisure
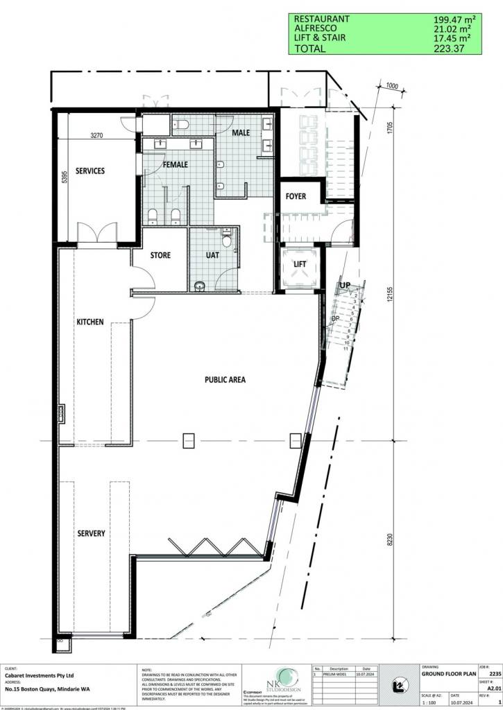
- Land area approx 314sqm
- Floor area approx 225sqm
- Region Perth
- Locality Wanneroo
Restaurant and Coffee Lease: Step in to a Turnkey Operation
Phone enquiries - please call 1300 594 794 and quote property ID 35240.
A unique opportunity is available for an experienced operator to lease a new waterfront development in Mindarie. Construction is set to begin soon, offering the incoming tenant a chance to contribute to the internal layout and fittings. Opportunities like this are rare, and the owner is open to discussing any proposals submitted. The development holds Building Permit BP2025.1849.1 (Wanneroo Council), with construction scheduled to start in July 2026 and completion expected in 2027. The lease also includes approval for an alfresco area of approximately 50 square metres.
DISCLAIMER No Agent Business (www.noagentbusiness.com.au) is an Australian For Sale By Owner website operating since 1999. We proudly assist commercial property owners who are looking to sell or lease their own commercial property without paying any real estate commission. While every care has been taken to verify the accuracy of the details in this advertisement, the correctness cannot be guaranteed.
Email a friend
You must be logged in and have a verified email address to use this feature.
Call Agent
-
No Agent Property - WANo Agent Property

