15 Carol Street Sun Valley QLD 4680
For Sale $539,000 As Is Where Is
- Property Type House
- Land area approx 708sqm
- Region Fitzroy and Central West
- Locality Gladstone
- Garages 1
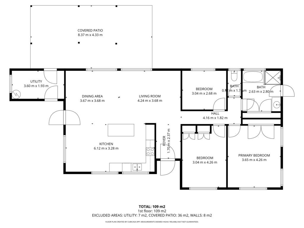
A Fantastic Opportunity on a 708m² Allotment!
Discover the potential in this well-loved, one-owner family home perfect for buyers ready to add their own touches and create something truly special. Set on a generous 708m² block, this property offers space, comfort, and incredible value for those looking to invest some TLC.
Property Features:
Bedroom 1 - New carpet, ceiling fan, built-in wardrobe, and security screens.
Bedroom 2 - New carpet, ceiling fan, and security screens.
Bedroom 3 - Ceiling fan, box window air-conditioning, new carpet, and built-in wardrobe.
One Bathroom featuring a shower, bathtub, and vanity.
Open-plan living area with tiled flooring, ceiling fan, security screens, and a seamless flow between the lounge and dining spaces.
Functional kitchen with electric cooktop, dishwasher, ample cupboard storage, and generous bench space.
Convenient laundry located next to the living areas.
Outdoor Highlights:
Spacious undercover entertainment area perfect for family gatherings.
Single undercover carport.
Large yard with room to add value, Not Fully Fenced.
This home is being sold AS IS, WHERE IS the ideal opportunity for renovators, investors, or first-home buyers looking to step into the market and create something exceptional.
With only one owner since new, this property is ready for its next chapter. A chance like this doesn't come often!
Open-plan living area with tiled flooring, ceiling fan, security screens, and a seamless flow between the lounge and dining spaces.
Functional kitchen with electric cooktop, dishwasher, ample cupboard storage, and generous bench space.
Current rental estimate is $440 to $460 per week.
** Not Fully Fenced**
**Please note the information in this advertisement comes from sources we believe to be accurate, but accuracy is not guaranteed. Interested parties should make and rely on their own independent enquiries and due diligence in relation to the property**
Email a friend
You must be logged in and have a verified email address to use this feature.
Call Agent
-
Natasha KareRay White Gladstone

