16 Awaba Street Teralba NSW 2284
For Lease $595 pw
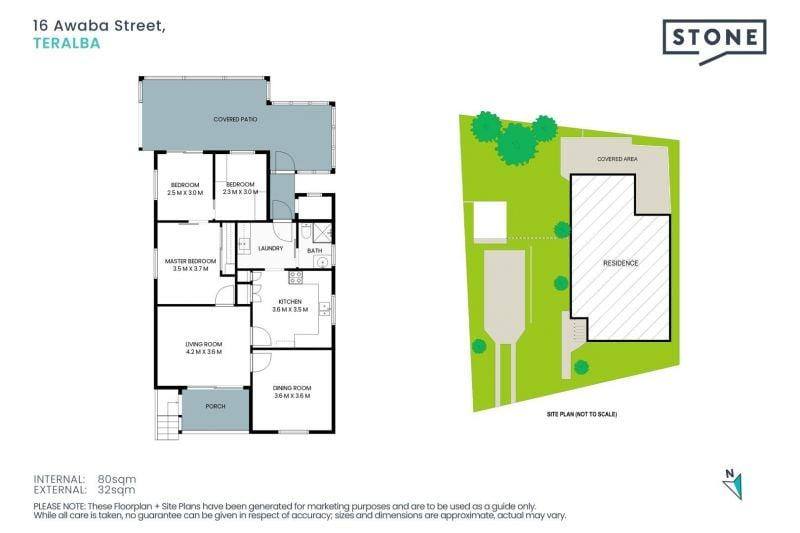
- Property Type House
- Land area approx 420sqm
- Floor area approx 100sqm
- Region Hunter
- Locality Lake Macquarie
Solid 3-bedroom, 1-bathroom home in quiet street.
Phone enquiries - please quote property ID 38511.
Vacant and ready to move-in now. The floorplan includes a spacious open-plan living and dining area, a functional kitchen, and three well-sized bedrooms (2 include built in robes). The central bathroom is tidy and serviceable.
The home sits on a low-maintenance block with off-street parking and plenty of on street parking as well. There's also a private backyard with space for kids, pets, or outdoor entertaining. A garden shed for storage is included. Located close to Teralba schools, shops, train station and public transport.
You will love the features of this home:
- Convenient location– close to schools, shops, train station, public transport & parks
- Open-plan living and dining – perfect for everyday living or entertaining
DISCLAIMER While proudly assisting home owners to sell since 1999, No Agent Property takes every care to verify the accuracy of the details in this advertisement, but the correctness cannot be guaranteed.
Property Features
- Air Conditioning
- Courtyard
- Pet Friendly
- Shed
Email a friend
You must be logged in and have a verified email address to use this feature.
Call Agent
-
No Agent Property - NSWNo Agent Property