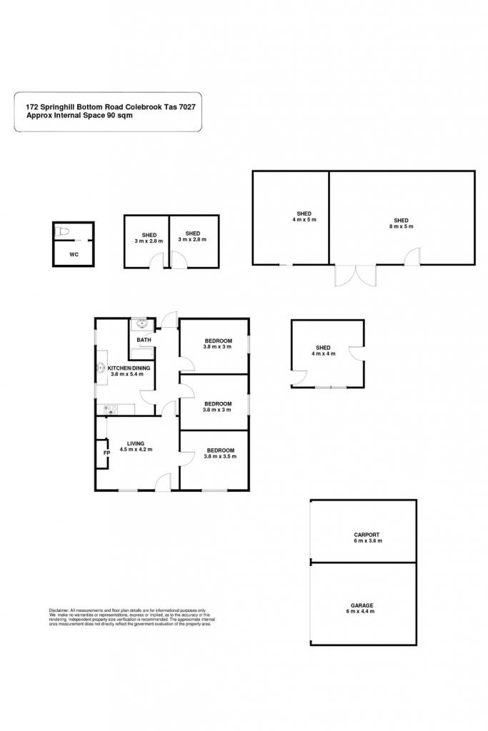
172 Springhill Bottom Road Colebrook TAS 7027
For Sale Offers over $699,000
- Property Type House
- Land area approx 38.57ha
- Floor area approx 90sqm
- Region Tasmania
- Locality Southern Midlands
- Toilets 1
- Uncovered Carspaces 8
A Picturesque 100-Acre Rural Retreat in the Heart of Colebrook
Welcome to an exceptional rural retreat in the heart of Colebrook - a beautifully renovated three-bedroom family home set across approximately 100 acres of rolling pastureland. Surrounded by sweeping views and natural tranquillity, this property delivers the perfect blend of comfort, productivity and lifestyle.
Thoughtfully updated, the home retains its original charm while offering modern, easy living throughout. Sun-filled interiors create a warm and inviting atmosphere, making it an ideal sanctuary for families or those seeking a slower-paced lifestyle.
The land is fully fenced and divided into multiple paddocks, currently supporting over 100 sheep and several horses. Whether you're looking to expand livestock, pursue hobby farming or enjoy equestrian activities, the infrastructure is already in place. A picturesque creek with a serene waterhole adds to the property's appeal, while an existing licence to develop an additional 10-megalitre dam provides excellent potential for enhanced water security.
Adding even more versatility, the large on-site gravel quarry offers practical value for personal use or future projects.
This is a rare opportunity to secure a productive, peaceful and beautifully balanced rural holding where all the hard work has been done-ready for you to enjoy.
Roberts Real Estate have obtained all information in this document from sources considered to be reliable; however, we cannot guarantee its accuracy.
Prospective purchasers are advised to carry out their own investigations. All measurements are approximate.
Email a friend
You must be logged in and have a verified email address to use this feature.
Call Agent
-
Paul BelcherRoberts Real Estate Glenorchy

