19 Campbell Street Birchip VIC 3483
For Sale $120,000 - $130,000
- Property Type House
- Land area approx 1994sqm
- Floor area approx 135sqm
- Region Loddon Mallee
- Locality Buloke
Brilliant buying in Birchip!
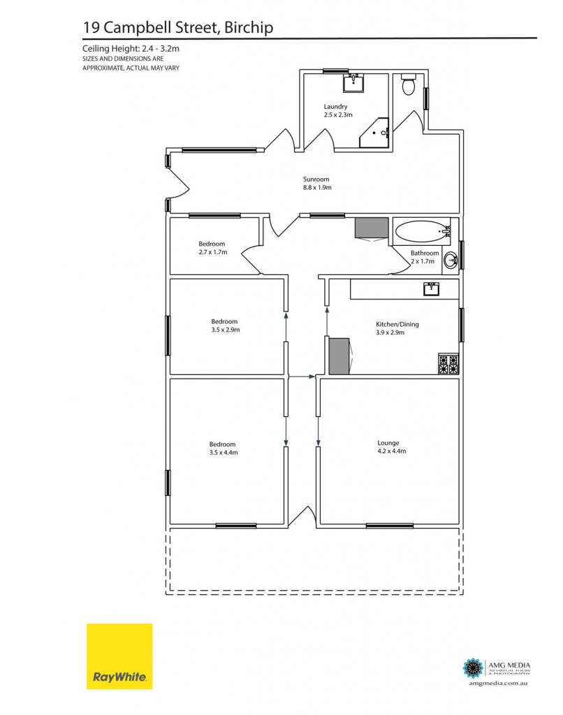
Located approximately 300 kilometres northwest of Melbourne is this well loved three bedroom home on half-an-acre. The Miners cottage style home is looking for some love and care, however does have alimininium windows throughout. The modest home features gas heating, several split systems for heating & cooling, compact yet functional kitchen and the third bedroom fits a single bed or could be utilised as a study. The property needs some work to modernise as currently the shower and toilet are external to the house in the laundry (yet still undercover) and has the potential to all be enclosed.
With additional rear access to a bitumen street, there is the potential to subdivide like some of the neighbours have done. With an assortment of older shedding, there is enough room to build a shed suitable to your requirements. Only a 250 metre walk to the local pub, whilst also being walking distance to sporting facilities, P-12 school, swimming pool and Birchip's main street. The home is comfortable as is, but wants some improvements to bring it into the 21st century. This is affordable buying at its best!
Email a friend
You must be logged in and have a verified email address to use this feature.
Call Agent
-
Brett DriscollRay White Mildura

