2/76 Queen Street Grafton NSW 2460
For Sale $425,000
- Property Type Unit
- Floor area approx 173sqm
- Region Northern Rivers
- Locality Clarence Valley
- Garages 1
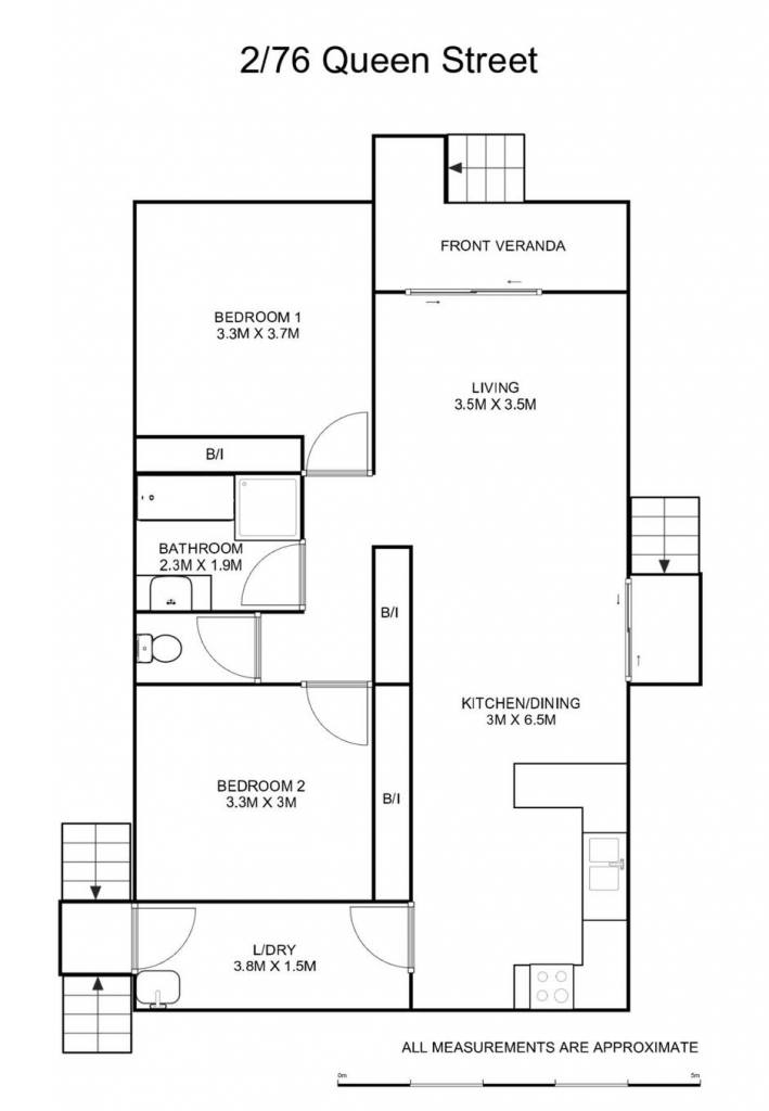
TUCKED AWAY IN THE CENTRE OF TOWN
You would not know 2/76 Queen St existed if you didn't live there - its front door, back door and garage entry are all hidden from the street view. But the address is right in the centre of Grafton, a block from Aldi, opposite Grafton Public School and an easy walk to Coles Grafton and medical services.
The layout is spacious and clean - a simple but comfortable 2 bed, 1 bath plus lock up garage.
There is great natural light, a charming little front porch, air conditioning and ceiling fans.
The lock up garage is accessed by Little Bacon St and is super private.
Offered for sale with an excellent long term tenant in place on an expired lease - who pays $410 per week. The property could also be purchased with vacant possession if you wish.
Strata fees are $500 per quarter.
Market rental value is ~ $440 per week.
Building report is available.
Email a friend
You must be logged in and have a verified email address to use this feature.
Call Agent
-
Angus McKimmMcKimms Real Estate Grafton

