2 Grafton Street Lawrence NSW 2460
For Sale $1,260,000 - $1,400,000
- Property Type House
- Land area approx 485.90sqm
- Region Northern Rivers
- Locality Clarence Valley
- Garages 5
270° WATERFRONT VIEWS OVER THE CLARENCE RIVER
Elevated Living Engineered for Its Environment
Positioned on the banks of the iconic Clarence River in the peaceful township of Lawrence, this impressive 4-bedroom, 3-bathroom residence has been thoughtfully designed to maximise its exceptional setting, capturing sweeping 270-degree waterfront views from an elevated position.
Engineered specifically for its riverfront environment and constructed above council-advised flood height compliances, the home delivers a rare combination of lifestyle, functionality and long-term confidence.
Upstairs, expansive open-plan living is bathed in natural light, with polished timber floors, high ceilings and seamless indoor-outdoor flow creating a warm yet refined atmosphere. Large windows frame uninterrupted views across the Clarence River from nearly every angle, making the outlook a constant feature of everyday living.
At the heart of the home, the kitchen features stone benchtops, quality finishes and a central island, perfectly positioned to connect with the surrounding living and dining spaces.
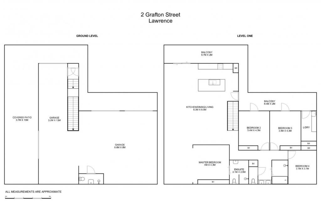
Accommodation includes four well-appointed bedrooms and three bathrooms, offering flexibility for families, guests or multi-generational living. The master suite is privately positioned to take full advantage of the home's elevated outlook and tranquil riverside setting.
The wraparound balcony is a true highlight — an elevated vantage point designed for entertaining or simply unwinding while taking in the ever-changing river views.
On the ground level, extensive garaging and multi-purpose space provide exceptional versatility for vehicles, boats, caravans or a workshop — a rare and highly practical addition for a waterfront property.
Set on a prime riverfront parcel with direct access to the water, this is a home that fully embraces its location while offering space, design and lifestyle in a tightly held setting.
The Lifestyle
A peaceful riverside setting just minutes from Maclean and within easy reach of Yamba beaches, offering the perfect balance between relaxed living and everyday convenience.
The Opportunity
Waterfront properties of this scale, design and position along the Clarence River are increasingly hard to secure — particularly those engineered to complement their environment.
Key Features
• Elevated, architecturally designed waterfront home
• Overlooking the Clarence River with sweeping 270° views
• Engineered for flood safety and built above council-advised levels
• 4 bedrooms, 3 bathrooms
• Open-plan living with panoramic outlook
• Stone kitchen with central island
* Wood fireplace and ducted air conditioning
• Wraparound balcony for entertaining
• Light-filled interiors, high ceilings, timber floors
• Private master suite with elevated outlook
• Flexible layout for families or dual living
• Extensive garaging & versatile ground-level space
• Ideal for boats, caravans or workshop
• Direct river access
• Easy reach of Maclean, Yamba & Grafton
Property Features
- Air Conditioning
- Built In Wardrobes
- Dishwasher
- Outdoor Entertaining Area
- Remote Controlled Garage Door
Email a friend
You must be logged in and have a verified email address to use this feature.
Call Agent
-
Angus McKimmMcKimms Real Estate Grafton
Call Agent
-
Emily GoodallMcKimms Real Estate Grafton

