205 Paper Beach Road Swan Point TAS 7275
For Sale Offers Above $685,000
Under Offer- Property Type House
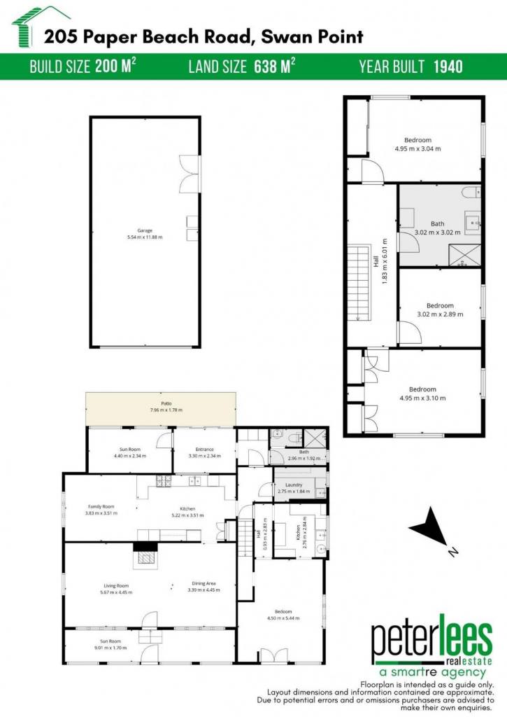
- Land area approx 638sqm
- Floor area approx 200sqm
- Region Tasmania
- Locality West Tamar
- Ensuite 1
- Garages 2
- Uncovered Carspaces 2
Picture-Perfect Living on the Water's Edge
If a calm, waterside lifestyle is calling, this beautiful home answers in style. Perfectly positioned right on the water's edge, it offers a rare opportunity to slow down, unwind and enjoy ever-changing views from most rooms of the home.
The flexible floorplan includes a dual-living option, with a bed-sit area, complete with its own kitchenette, perfect for large families, guests, or extended family stays. The main residence offers three generous bedrooms with a study or craft room, two bathrooms, two living areas and a fantastic kitchen that forms the heart of the home.
Comfort is assured year-round with both wood heating and electric heating/cooling with the benefits of 20 solar panels and next to no electricity bills, making this an inviting retreat in every season.
Step outside to a thoughtfully designed backyard featuring raised vegetable gardens, ideal for those who love to grow their own, while a large garage adds excellent practicality and storage.
Whether it's enjoying a quiet morning coffee by the water or entertaining friends as the sun sets that you're after, this tranquil setting provides it all, yet everyday conveniences remain within easy reach, offering the perfect balanced lifestyle.
Ideal as a permanent residence, holiday retreat or potential investment opportunity, this picture-perfect waterside property delivers lifestyle, flexibility, and location in one exceptional package.
*Peter Lees Real Estate has used a variety of sources to obtain information relating to this property. We believe all are reliable sources and have no reason to doubt the accuracy of the information, however we cannot guarantee it. Prospective purchasers are advised to make their own enquiries.
Boundary lines are indicative only.
Property Features
- Air Conditioning
- Area Views
- Beach Front
- Heating
- Lock Up Garage
- Solar Power
- Water Front
- Water Views
Email a friend
You must be logged in and have a verified email address to use this feature.
Call Agent
-
Larrisa BrickhillPeter Lees Real Estate
Call Agent
-
Larrisa BrickhillPeter Lees Real Estate

