21 Swan Road Mahogany Creek WA 6072
For Sale New to Market
- Property Type House
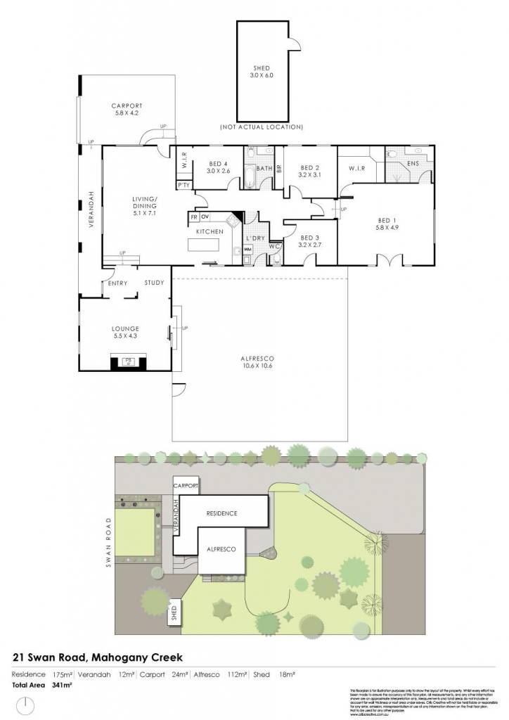
- Land area approx 3035.00sqm
- Floor area approx 341sqm
- Region Perth
- Locality Mundaring
- Toilets 3
- Uncovered Carspaces 6
- Carports 2
A Mediterranean Oasis – Casa Plava Vrata
THE FEATURES YOU WILL LOVE
This exceptional residence presents an exciting opportunity to secure a truly unique lifestyle property in one of the most sought-after pockets of the Perth Hills. Ticking all the key boxes – a beautifully upgraded Mediterranean-inspired home, generous accommodation, serene outdoor spaces, and a generous 3035m2 landholding with abundant parking, this property appeals to families, upgraders, and downsizers alike. The manageable land size offers space without overwhelming maintenance, making it as attractive to those looking to simplify as it is to those seeking room to grow.
Lovingly named Casa Plava Vrata – meaning "House with the Blue Door" – this home embodies a calming, coastal-inspired Mediterranean aesthetic and celebrates a slower, more peaceful way of living. Graceful archways flow throughout the residence, framing sunlit spaces and terracotta tiles that whisper of warmer shores. It's a place where life simply feels lighter.
Light, bright and thoughtfully designed, this four-bedroom, two-bathroom home with study offers comfort, separation and an elegant sense of calm throughout. Ideal for families seeking usable, manageable land without overwhelming upkeep, the home delivers the perfect blend of space, practicality and lifestyle appeal.
The free-flowing layout offers excellent separation between living zones. The oversized primary suite is a standout, complete with walk-in robe, ensuite and charming French doors that open to a peaceful garden sitting area, the perfect place to enjoy morning light or an evening unwind. Additional bedrooms and the study are positioned for privacy and day-to-day functionality.
The upstairs living area elevates the home even further. With raked ceilings and a striking limestone fireplace, upgraded with a Jarrahdale wood heater, the space is warm, inviting and rich in character. Flowing directly to the outdoor entertaining area, it's a beautiful setting that offers both separation and connection for families and guests.
Outdoors, the property shines. The 3035m2 landholding offers flexibility rarely found in the area: space to add a future shed, two separate parking zones for caravans, boats, trailers and all the toys. Landscaped gardens, established trees and side access to the rear further enhance the appeal.
Set on the high side of the road, the home enjoys soft natural light throughout the day and presents with exceptional street appeal. Picture perfect truly defines this residence.
· Four bedrooms
· Study
· Two bathrooms
· Two living areas
· Oversized primary suite
· Air-conditioning
· Fireplace with inbuilt Jarrahdale wood heater
· Two separate parking zones for caravans, boats and trailers
· Landscaped gardens with established trees
· Side access to rear
· Abundant natural light
THE LIFESTYLE YOU WILL LIVE
Mahogany Creek offers the perfect blend of nature, space and convenience. One of the most attractive features of this locale is the lifestyle it affords – the charm and calm of the hills without feeling disconnected. Just up the hill yet moments from major transport links, you are effortlessly connected to Perth while still enjoying privacy, tranquillity and nature at your doorstep.
Enjoy easy access to Glen Forrest Primary School and Helena College, making it ideal for families. Outdoor enthusiasts will love the nearby Railway Reserves Heritage Trail, with scenic walking and cycling routes through the Perth Hills. Just around the corner, the historic Mahogany Inn & Distillery provides a relaxed local spot for dining and drinks. Peaceful, connected and community-minded – this is hills living at its best.
THE DETAILS YOU WILL NEED
Council Rates: $2850.00 per annum (approx)
Water Rates: $289.66 per annum (approx)
Land Area: 3035m2
Build Area: 341m2
For further details please contact Exclusive Selling Agent Thomas Bale from The Agency on 0406 403 888.
Disclaimer:
This information is provided for general information purposes only and is based on information provided by the Seller and may be subject to change. No warranty or representation is made as to its accuracy and interested parties should place no reliance on it and should make their own independent enquiries.
Property Features
- Outdoor Entertaining Area
- Open Fireplace
- Dishwasher
- Built In Wardrobes
- Air Conditioning
Email a friend
You must be logged in and have a verified email address to use this feature.
Call Agent
-
Thomas BaleThe Agency Perth

