23 Gilbert Street Wodonga VIC 3690
Sold $480,000
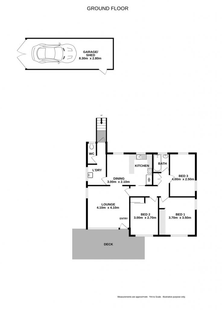
3 BEDROOM HOME IN PRIME LOCATION
Positioned on a generous corner block, this property offers versatility and potential for both investors and owner-occupiers. Set in a well-established Wodonga location, it provides easy access to parks, schools, and local amenities, making it a smart opportunity in a sought-after area.
- Three bedrooms - Master and second bedrooms with built-in robes; third bedroom ready for your personal touch. All rooms feature ceiling fans, with a split system in the master.
- Well-appointed bathroom with a bath and single vanity.
- Separate toilet - Conveniently located off the laundry for added functionality.
- Kitchen featuring freestanding gas cooking, positioned adjacent to the dining area.
- Formal living area at the front of the home, providing a welcoming space for relaxation or entertaining.
- Comfortable climate control with a split system in the lounge and master bedroom, complemented by gas heating.
- Side access from Pearce Street leading to a spacious 3x9m shed, ideal for secure parking, storage, or hobbies.
- Extra off-street parking at the front, providing convenience for residents and guests.
- Generous 704.94m² lot with an enclosed, low-maintenance yard, perfect for privacy and easy outdoor living.
Don't miss this versatile opportunity, whether you're looking to invest or settle in, this property is ready to deliver.
Disclaimer: All information provided has been gathered with care from sources believed to be reliable; however, neither the vendor nor the agent makes any warranty as to its accuracy, completeness, or currency. Interested parties should not rely solely on these particulars and are advised to conduct their own independent enquiries, inspections, and verification to satisfy themselves of all relevant details.
Property Features
- Built In Wardrobes
- Floorboards
- Gas Heating
Email a friend
You must be logged in and have a verified email address to use this feature.
Call Agent
-
Jake SpargoPRD Real Estate Albury
Call Agent
-
Matt SharpPRD Real Estate Albury

