24 Tucklan Street Dunedoo NSW 2844
Sold $465,000
- Property Type House
- Land area approx 1031sqm
- Council Rates $716/quarter
- Region Orana
- Locality Warrumbungle
- Carports 1
- Garages 2
- Toilets 3
COMFORTABLE LIVING IN PRIME LOCATION
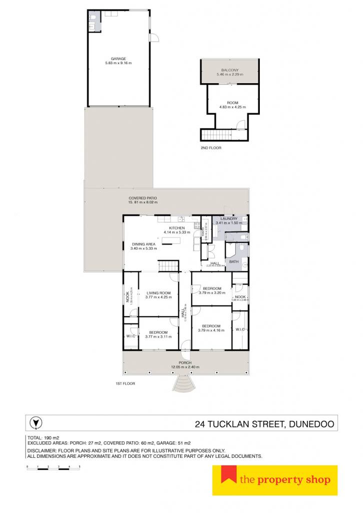
Offered to the market for the first time in over 20 years, this well maintained four-bedroom home presents an exceptional opportunity in a tightly held Dunedoo location. Positioned just blocks from the town centre, school, the Sports Club, and pool. This property combines convenience and lifestyle effortlessly.
- Four-bedroom, one-bathroom family home
- Two bedrooms with walk-in robes, third with built-in robe
- Spacious lounge room plus open plan kitchen and dining area
- Kitchen complete with island bench, dishwasher, pantry and ample storage
- Main bathroom features shower and toilet and additional w/c
- Stay comfortable year round with split system air conditioning
- Fully fenced 1031 sqm block with rear lane access
- Double garage shed with power and toilet, plus carport and garden shed
- 3kW solar system and approx. 5000L freshwater storage
- Smart investment with a rental estimate of $500-$530 per week and 5.6% yield
Whether you are a first home buyer, growing family or savvy investor, this opportunity is not to be missed, contact Annie Christensen on 0476 787 380 to arrange your inspection today!
Property Features
- Air Conditioning
- Built In Wardrobes
- Close to Schools
- Close to Shops
- Close to Transport
- Deck
- Dishwasher
- Fully Fenced
- Solar Panels
- Split System Heating
Email a friend
You must be logged in and have a verified email address to use this feature.
Call Agent
-
Annie ChristensenThe Property Shop
Call Agent
-
James Tracy-InglisThe Property Shop

