247 Kiewa Street South Albury NSW 2640
Leased
Bond: $1280
2 1 2
CONVENIENT LOCATION
This South Albury location offers easy access to Noreuil Park and the Murray River, local coffee shops and sporting fields whilst also maintaining close proximity to Albury CBD.
Offering:
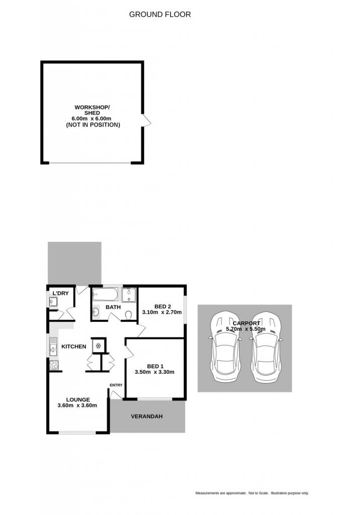
- Two bedrooms with ceiling fans.
- Lounge room with gas heating and wall air conditioning.
- Updated kitchen with gas cooking.
- Full main bathroom.
- Double carport and shedding.
- Large, enclosed yards.
Property Features
- Air Conditioning
×
×
Email a friend
You must be logged in and have a verified email address to use this feature.
×
×
Call Agent
-
Residential Asset Management TeamPRD Real Estate Albury

