26 Harold Street Ouyen VIC 3490
For Sale $240,000 - $260,000
Under Offer- Property Type House
- Land area approx 991sqm
- Region Loddon Mallee
- Locality Mildura
- Carports 2
Ready to add value?!
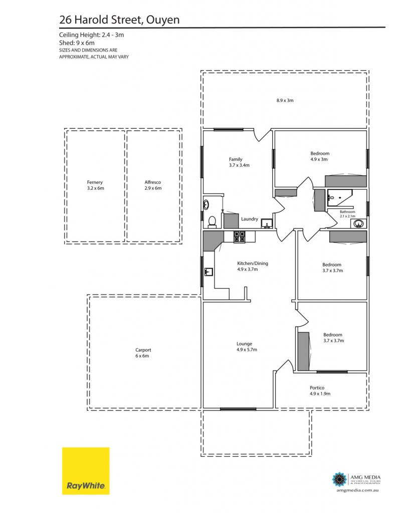
Three bedroom hardiplank home set on almost a quarter acre (992m2). The home features an updated bathroom plus a neat & tidy kitchen with dishwasher & freestanding gas cooktop & oven.
All three bedrooms with ducted air con, ceiling fans and built-in-robes, while two bedrooms also feature spilt systems. With high ceilings and two living areas, the property also offers evaporative cooling & split system heating/cooling and European laundry.
6m x 9m shed with concrete floor, lights, power & dual roller doors. The yard offers established gardens, rear lane access, several rainwater tanks, and a paved alfresco area, plus a double carport. Sure it needs some tender love and care & some re-stumping; but at this price you can afford to go and add value.
Email a friend
You must be logged in and have a verified email address to use this feature.
Call Agent
-
Brett DriscollRay White Mildura

