3 Deplanchea Terrace Mission River QLD 4874
For Sale Tender Closing: Monday, 16th March 2026 @ 10:00AM
- Property Type Block of Units
- Land area approx 2704sqm
- Region Far North Queensland and Torres Strait
- Locality Weipa
- Carports 3
- Uncovered Carspaces 8
Investment Opportunity: Fully Leased Residential Portfolio on One Title
Proudly presented to the market by 'The Ray Murphy Team', this fully leased residential complex is offered on one title and positioned on a substantial 2,704m² landholding, presenting a high-quality investment opportunity with immediate income and strong long-term holding appeal.
Comprising six residences in total, the property delivers a diversified tenancy mix supported by generous on-site parking, storage infrastructure, and a low-density layout across an expansive allotment, ideal for investors seeking stable cash flow at scale.
Property Configuration:
4 x Two-bedroom, one-bathroom units
• Located across two levels, with two units on the ground floor and two on the first floor
• Two well-proportioned bedrooms
• Well-appointed kitchen with free-standing stove/oven
• Combined bathroom and laundry
1 x One-bedroom, one-bathroom unit
• Positioned on the ground level at the end of the building
• One spacious bedroom
• Open-plan living and dining area
• Central kitchen with free-standing stove/oven
• Combined bathroom and laundry
• Private patio
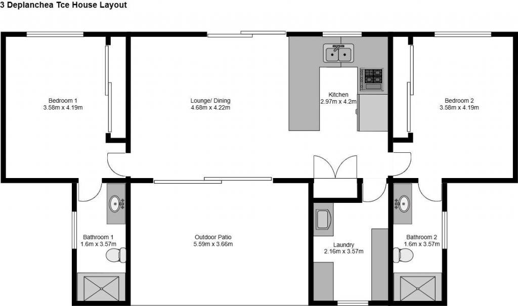
1 x Two-bedroom, two-bathroom house
• Fully detached from the unit complex
• Two bedrooms with built-in robes, each with a contemporary ensuite
• Spacious kitchen with ample bench and cupboard space
• Open-plan living and dining with split-system air conditioning
• Undercover patio
• Security screens and tiled throughout
• Separate laundry with additional storage
Additional Features:
• Land area: 2,704m²
• Solid brick construction
• Storage sheds
• Double carport at the front of the property
• Undercover entertaining area connected to the unit building
Tenancy & Income: All dwellings are currently leased
• 3 Deplanchea (House): Currently achieving $3,476.19 per month
• Unit 1: Currently achieving $2,498.51 per month
• Unit 2: Currently achieving $2,607.14 per month
• Unit 3: Currently achieving $2,498.51 per month
• Unit 4: Currently achieving $550.00 per week
• Unit 5: Currently achieving $2,172.62 per month.
The area is predominantly residential, supporting a stable, employment-driven tenant base. Residents benefit from access to essential amenities, including shopping, health services and nearby educational facilities at Western Cape College. The surrounding tropical coastal environment enhances overall liveability and reinforces the area's appeal as a long-term residential location with limited rental supply.
Contact 'The Ray Murphy Team' today to register your interest.
Disclaimer: All information contained is gathered from sources we believe to be reliable. In preparation of this advertisement our best endeavours have been made to ensure the information contained is true and accurate. However, we accept no responsibility and disclaim all liability in respect to any errors, omissions, inaccuracies, or misstatements contained. Prospective purchasers are encouraged to make their own enquiries to verify the information contained in this advertisement.
Email a friend
You must be logged in and have a verified email address to use this feature.
Call Agent
-
Ray MurphyRE/MAX Real Estate Cairns
Call Agent
-
Ben KeeneRE/MAX Real Estate Cairns
