331 Wooliana Road Daly River NT 0822
For Sale $375,000 Neg
- Property Type Lifestyle
- Land area approx 20ac
- Floor area approx 117sqm
- Region Northern Territory
- Locality Victoria-Daly
- Garages 5
Daly River Property For Sale
Phone enquiries - please call 1300 594 794 and quote property ID 35847.
Your opportunity now presents to own land at the Northern Territory’s Premier Iconic Barramundi Hot Spot
High and dry block app 220km from Darwin
Bitumen road frontage, all-year access
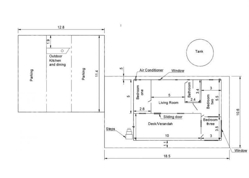
App 340 sq/m under roof
- House 195 sq/m app
- Outdoor area 146 sq/m app
All steel structures and framing
3 bedroom house with living room, bathroom and expansive 40 sq/m verandah
Outdoor kitchen and dining area with undercover parking for the cars and boats
Fully cleared area around the buildings
Built-in stages from a virgin block in 1999
All the hard work is done
Firebreaks in place
Generator power - Tank water
10 minutes drive to all the local amenities - Public boat ramp - Pub and fuel - Food and supplies at Nauiyu Community - Daly River Crossing and other land-based fishing spots
Imagine the serenity of a lifestyle change with magnificent tall timber, abundant birds and wildlife with breathtaking views and cooling breezes year-round from the elevated vantage point
Best views by far of all the Wooliana Roadblocks
Vast floodplain frontage to get out on the quad or buggy
The potential here is UNLIMITED
- use property as is
- set up as off-grid
- connect to mains power passing
- take it to the next level
2024/25 council rates $1914.55
Inspection by appointment only
An extensive list of chattels is included with the sale
DISCLAIMER While proudly assisting home owners to sell since 1999, No Agent Property takes every care to verify the accuracy of the details in this advertisement, but the correctness cannot be guaranteed.
Email a friend
You must be logged in and have a verified email address to use this feature.
Call Agent
-
No Agent Property - NTNo Agent Property

