39 Launceston Avenue City Beach WA 6015
For Sale Under Offer By Dee Elmahdy
Under OfferA Mid-Century Masterpiece By Graham Hatton, Offered for the First Time
39 Launceston Avenue is far more than just a home, it's a landmark piece of City Beach history. Designed by renowned architect Graham Hatton, one of Perth's most respected names in mid-century design, this residence captures everything that makes the era so enduringly sought after: clean architectural lines, natural textures, and a layout that celebrates light, space, and connection.
Set on a 776sqm elevated block with a leafy outlook, this single-level home has been cherished by one family since it was built, and is now offered to market for the very first time. For lovers of authentic mid-century architecture, opportunities like this are vanishingly rare.
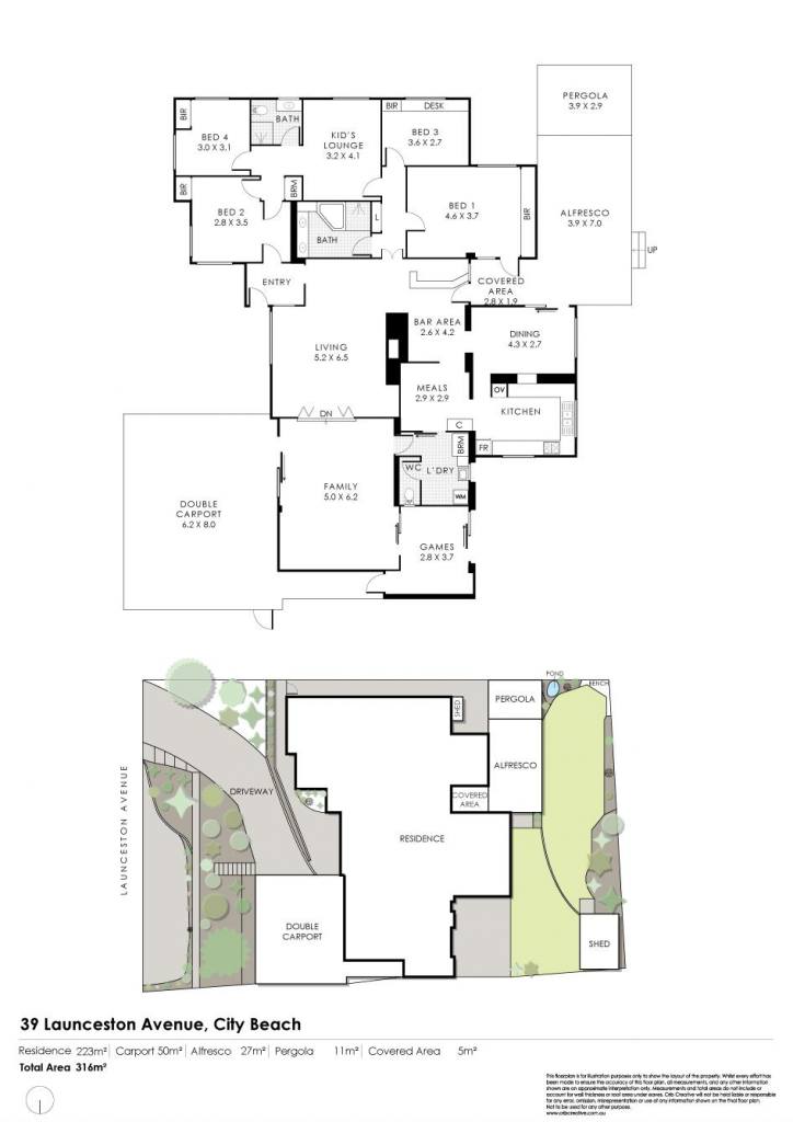
Inside, the home unfolds across 4 bedrooms, 2 bathrooms, and 3 separate living areas, each space defined by its warmth, charm, and functionality. The dining area is a true showpiece, with a stunning picture window that frames the leafy surrounds and bathes the room in light, creating the perfect backdrop for shared meals and conversation. The renovated kitchen blends modern convenience with timeless design, while the bathrooms still showcase their original tilework, a charming nod to the home's mid-century heritage.
Entertaining is at the heart of this home, with a built-in wine bar that speaks to an era when gathering friends was an art form. The flow continues outdoors, where established gardens and a private alfresco dining area invite summer dinners under the stars, weekend barbecues with family, or quiet moments surrounded by greenery.
Practicality has been thoughtfully considered too, with parking for 2 cars plus space for a boat, trailer or caravan, and the addition of solar panels that bring sustainable living into this mid-century classic, making the home as efficient as it is beautiful. And with the turquoise waters of City Beach only moments away, you'll enjoy morning swims, sunset walks, and the vibrant café and restaurant scene that make this pocket of City Beach so loved.
Owning a Graham Hatton home is to own a piece of architectural heritage. Known for his ability to design residences that were stylish, functional, and deeply connected to their environment, Hatton's work continues to shape the character of City Beach. This home is a living example of his vision, as relevant and desirable today as the day it was built.
Lovingly maintained and never before offered to market, 39 Launceston Avenue represents a once-in-a-lifetime chance to secure a mid-century classic in one of Perth's most coveted coastal suburbs. A home of this calibre, with its authenticity, history, and architectural significance, is truly irreplaceable.
Property Features
- Alarm System
- Dishwasher
- Shed
Email a friend
You must be logged in and have a verified email address to use this feature.
Call Agent
-
Dee ElmahdySpace Real Estate

