4 Cromwell Road Leneva VIC 3691
Sold $615,000
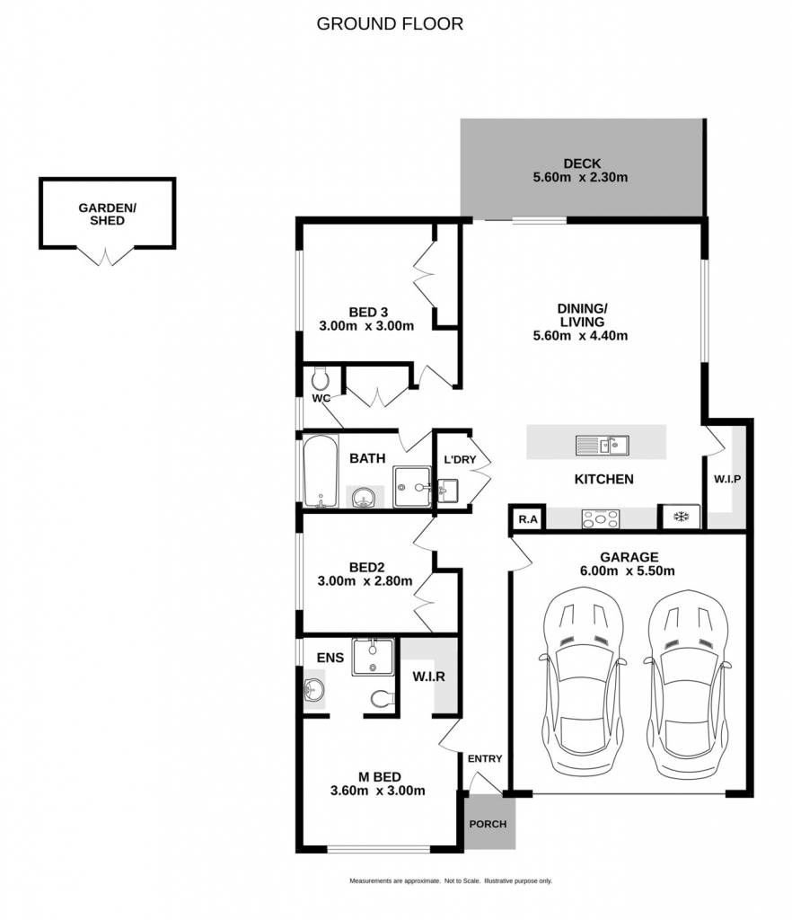
FAMILY HOME IN KINCHINGTON ESTATE
Welcome to 4 Cromwell Road, positioned in the sought-after Kinchington Estate of Leneva. A home that beautifully blends warmth, comfort, and connection, it has been lovingly maintained and offers a lifestyle made for modern living. With its outlook toward the rolling hills, picture mornings that begin with ease, afternoons shared with family and friends, and evenings spent unwinding in welcoming spaces; a place ready to be enjoyed and to create your next chapter.
Additional highlights include:
- Three generous bedrooms, all with ceiling fans, featuring a master suite with walk-in robe and ensuite, and built-in robes in the remaining bedrooms.
- Central family bathroom with modern fixtures, a spacious layout, and practical touches for effortless daily routines.
- Modern kitchen featuring a 900mm stainless steel gas cooktop and oven, matching appliances, island bench, walk-in pantry, all overlooking the living and dining areas for seamless entertaining.
- Open-plan living and dining area with sliding door access to the deck, creating a natural indoor-outdoor flow for gatherings and everyday living.
- Comfortable year-round climate with evaporative cooling, ducted heating, and a split system in the lounge.
- Double lock-up garage with automatic roller door and convenient internal access.
- Timber entertaining deck, ideal for alfresco dining, relaxing, and enjoying the outdoors.
- Generous 391.56m² block with lush lawns, raised veggie gardens, and manicured gardens, offering a low-maintenance space to enjoy outdoor living.
- Garden shed, perfect for storage and outdoor tools.
- Convenient gate access to the backyard, providing easy entry and simple maintenance.
- Modern finishes throughout, complemented by a neutral colour palette, creating a stylish and flexible backdrop for your personal touch.
This is a home that invites you to settle in and embrace every moment, whether it's relaxing on the deck, entertaining friends, or simply enjoying the calm of well-tended gardens. With its thoughtful features, seamless indoor-outdoor flow, and a sense of care in every detail, 4 Cromwell Road in Kinchington Estate offers more than a house; it's a lifestyle ready to be lived and cherished.
Disclaimer: All information provided has been gathered with care from sources believed to be reliable; however, neither the vendor nor the agent makes any warranty as to its accuracy, completeness, or currency. Interested parties should not rely solely on these particulars and are advised to conduct their own independent enquiries, inspections, and verification to satisfy themselves of all relevant details.
Email a friend
You must be logged in and have a verified email address to use this feature.
Call Agent
-
Jake SpargoPRD Real Estate Albury
Call Agent
-
Matt SharpPRD Real Estate Albury

