5 Burke Street Byrnestown QLD 4625
For Sale $295,000
- Property Type Other (Residential)
- Land area approx 1012sqm
- Region Wide Bay Burnett
- Locality North Burnett
Big Block, Big Potential - Approved Containers & Dwelling in Progress
Set on a generous 1,012sqm allotment in the heart of Byrnestown, 5 Burke Street presents an outstanding opportunity for buyers seeking space, flexibility and future upside.
The property features a removal home positioned on steel stumps, with the roof in excellent condition and partial renovations already completed. Electricity has been connected and water available via two large water tanks. With a bit more work, the home is currently on the way to achieving council approval as an A1 dwelling, offering purchasers the chance to complete the final requirements and add significant value.
The block includes council-approved shipping containers for shed use, providing immediate and versatile storage or workspace options. With a solid foundation already in place and plenty of room to enhance, this property is ideal for buyers seeking an affordable entry into the market and renovators. Additionally an outdoor shower and cannister toilet have been added to support interim stays.
Key features
• Professionally relocated and restumped on steel stumps in 2022
• Near new roof in excellent condition
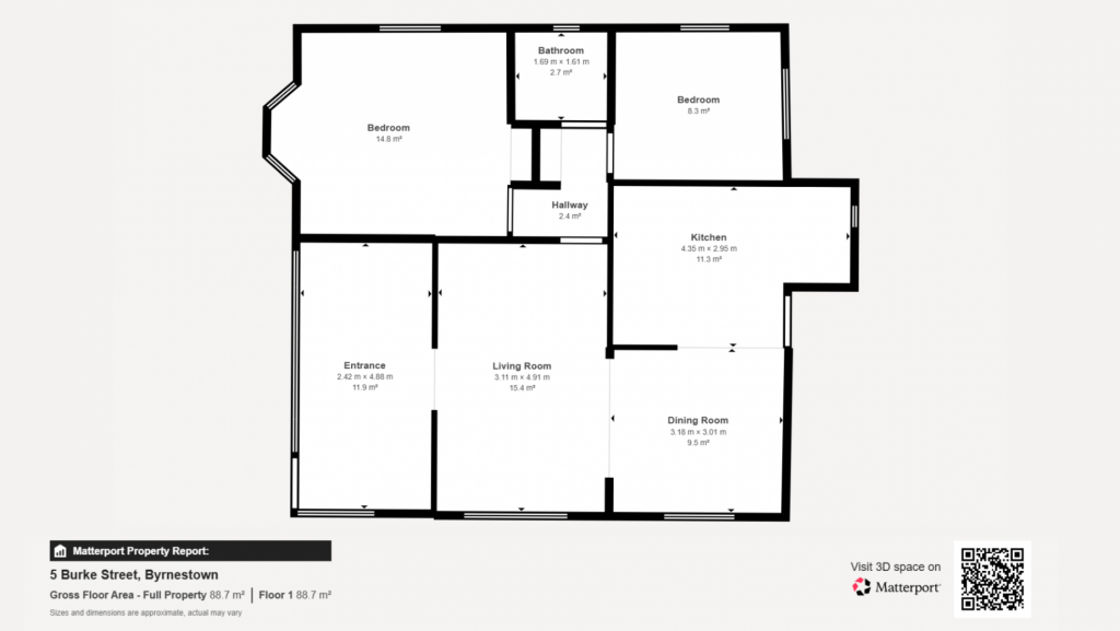
• Two-bedroom, 1-bathroom layout
• Breezy and light-filled spaces
• Electricity connected to the house and a shipping container
• All new wiring installed to meet current requirements
• Two near-new 5,000 gallon water tanks
• Partially renovated - new paint and fans in living areas and bedrooms
• Landscaped gardens
• Fully fenced
• Postie and Bin service
• School bus closeby
***Please note: The property does not yet have Class A1 liveable residential approval. Further consultation with the North Burnett Regional Council would be required. E.g. septic installation and plumbing works required. Approvals for works to be completed has been extended until January 2027.
Positioned in a quiet Byrnestown setting, this is a rare chance to secure land with rural views, improvements, and approvals already underway - all that's left is to finish and reap the rewards.
Byrnestown is approximately 20 minutes from Gayndah, 35 minutes from Biggenden and Mount Perry and approximately 1h 40 minutes from Hervey Bay & Bundaberg. The North Burnett region offers the best of country living - friendly locals, wide open spaces, and plenty to explore. Surrounded by natural attractions such as Mount Walsh, Utopia Rock Pools, Mingo Crossing, and Paradise Dam, this region is perfect for those who love weekend adventures and outdoor living.
Opportunities like this don't last long - inspect today and imagine the potential.
Call Ray White Rural Gayndah today: Jo Schuberth 0400 530 175 / Kait Packer 0476 006 330
Email a friend
You must be logged in and have a verified email address to use this feature.
Call Agent
-
Jo SchuberthRay White Rural Gayndah
Call Agent
-
Kait PackerRay White Rural Gayndah

