5 Partridge Place Singleton NSW 2330
For Sale $980,000 - $1,030,000
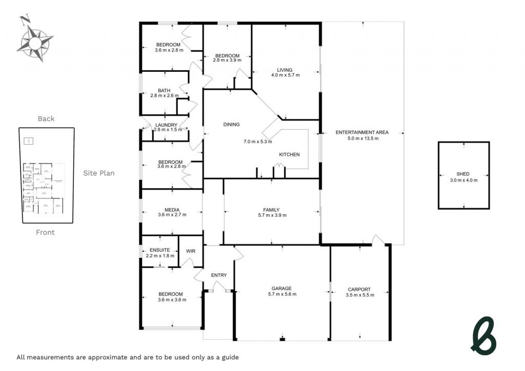
Spacious, stylish and move in ready
Positioned in one of Singleton Heights most peaceful and tightly held cul-de-sacs, this beautifully refreshed four-bedroom home delivers space and comfort for the whole family. With fresh updates throughout and multiple living zones, it's ready to move straight in and enjoy.
Property Features:
• Four generous bedrooms, all with built-in wardrobes, ceiling fans and plush carpet. Spacious main bedroom located at the front of the home features a well-appointed ensuite and walk-in wardrobe with both hanging and shelving space
• Freshly painted throughout with newly varnished flooring enhancing the home's warmth and appeal
• Ducted air conditioning system (less than 12 months old) for year-round comfort
• Multiple living areas including large family lounge room with new carpet and sliding glass doors to the outdoor entertaining area
• Separate dining area with newly installed carpet, day/night roller blinds and downlights
• Well-equipped kitchen with dishwasher, new electric cooktop, feature panel cabinetry and ample storage which overlooks the outdoor entertaining area
• Main bathroom complete with bathtub, vanity with storage and shower with new glass screen
• Functional laundry with extensive storage, space for side-by-side washer and dryer, plus external access
• Expansive covered entertaining area, perfect for hosting family and friends
• Double garage with internal access, freshly painted floor and remote roller doors with the addition of a screened carport for extra vehicle accommodation
• Side access to a large fully fenced backyard with plenty of space for a trailer, caravan or boat
• Well-maintained gardens, garden shed and water tank
Offering a fantastic combination of modern updates, multiple living spaces and in a highly sought-after location, this home is ideal for families, investors or anyone looking to secure a quality property.
All information provided has been obtained from sources considered reliable; however, no representation is made as to its accuracy. Prospective purchasers should rely on their own enquiries.
Email a friend
You must be logged in and have a verified email address to use this feature.
Call Agent
-
Renae TwomeyBailey Property and Livestock

