52 Maxwell Street Mornington VIC 3931
For Sale $1,190,000 - $1,300,000
- Property Type House
- Land area approx 782.0sqm
- Region Southern Melbourne
- Locality Mornington Peninsula
- Carports 2
Elevated Coastal Living with Bay Views and Exceptional Flexibility
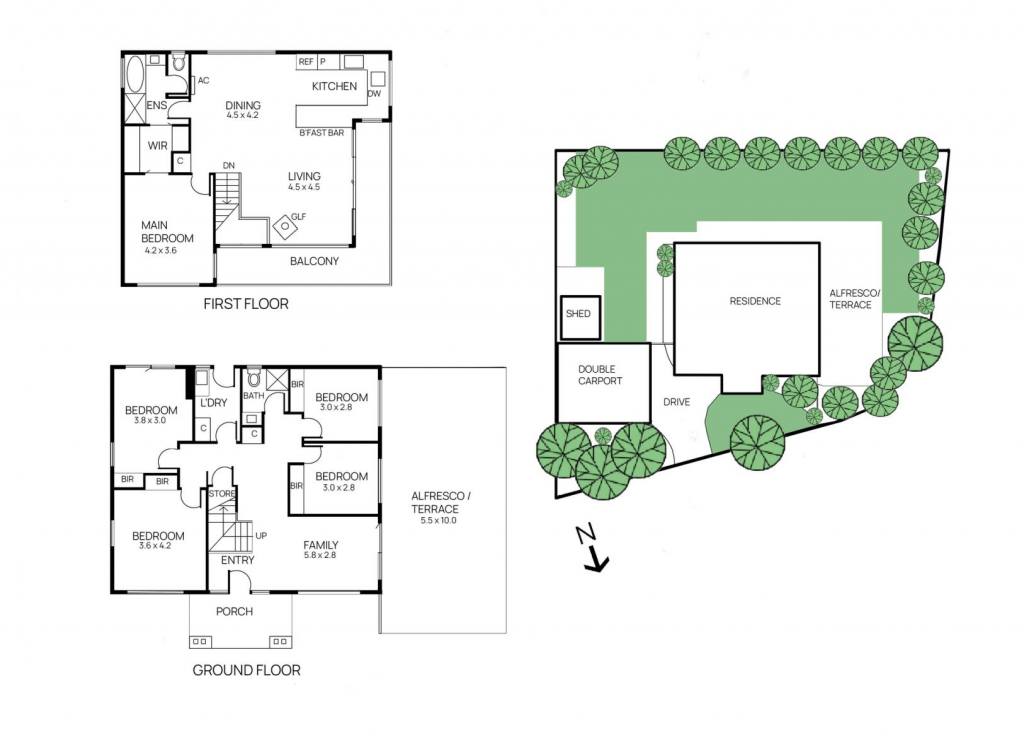
Positioned on a substantial corner allotment with secure dual access, this beautifully updated home offers the kind of flexibility and lifestyle that so many families are searching for. With generous proportions, modern finishes and sweeping bay views from the upper level, it is a residence designed to adapt as life evolves while keeping everyday living effortless.
Across two spacious levels, the home reveals a versatile four bedroom plus study configuration, with the option of a fifth bedroom to suit growing families, guests or those working from home. The kitchen and both bathrooms have been thoughtfully updated, creating a fresh and contemporary feel throughout. Upstairs, floor to ceiling wrap around windows invite natural light to flood the living space while framing stunning sunset views across the bay, best enjoyed from the private balcony at the end of the day.
Outdoor living is equally inviting, with a generous alfresco area that encourages relaxed entertaining and easy weekends at home. The low maintenance garden keeps upkeep simple, while secure dual access provides practical space for vans, trailers or additional vehicles. All of this is set within walking distance to the beach and just moments from Bentons Square Shopping Centre and the heart of Main Street Mornington, placing convenience firmly at your doorstep.
This is a home that delivers space, comfort and coastal connection in equal measure, all within one of Mornington’s most accessible and family friendly pockets.
Features:
• Large corner block with secure dual access for vans and trailers
• Four bedrooms plus study or optional fifth bedroom
• Two spacious living areas across two levels
• Updated kitchen and two modern bathrooms
• Upper level with floor to ceiling wrap around windows
• Beautiful bay views and sunset outlook from the balcony
• Generous alfresco area for year round entertaining
• Electric Coonara and split system heating and cooling
• Built in robes to bedrooms
• Double carport and separate shed
• Low maintenance gardens
• Walking distance to the beach
• Close to Bentons Square Shopping Centre and Main Street Mornington
Homes and Acreage is proud to be offering this property for sale – To arrange an inspection or for further information, please contact Penny Perry on 0448 004 673.
Property Features
- Balcony
- Built In Wardrobes
- Dishwasher
Email a friend
You must be logged in and have a verified email address to use this feature.
Call Agent
-
Jessika SpinkHomes & Acreage
Call Agent
-
Penny PerryHomes & Acreage

