52 Tina Ave Lamb Island QLD 4184
For Sale $1.2M All Offers Considered
- Property Type House
- Land area approx 1953.000sqm
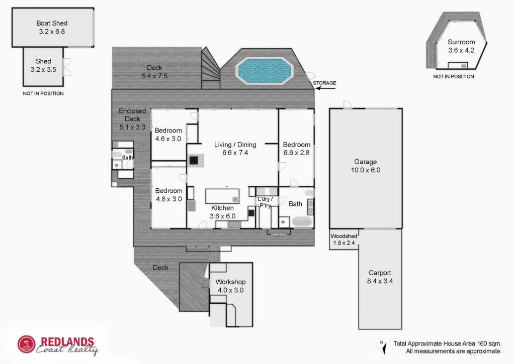
- Floor area approx 160sqm
- Region Logan and Redlands
- Locality Redland
- Carports 1
- Garages 1
Waterfront Paradise with Deep Water Access on Nearly Half an Acre
Welcome to 52 Tina Avenue, a rare waterfront gem on the south-eastern point of Lamb Island. Set on an expansive 1953m² block with approx. 50 metres of water frontage, this property is a dream for boat lovers. It offers direct deep water access, your own jetty and a private boat ramp with power and fresh water. The ramp is accessible directly from the street via a concreted driveway that runs through a large garage/workshop, with a door opening to the waterfront—perfect for launching or storing your boat with ease. There’s also a powered 6-tonne winch, a tinnie with 9.8hp outboard, and the option to secure a mooring directly in front of the property.
The Home
Completely transformed through extensive renovations, this beautifully presented home offers all the benefits of modern living in a breathtaking coastal setting. In 2019, the property was re-roofed, and more recently all decking replaced, and the kitchen fully renovated, giving it a fresh, contemporary feel throughout.
The kitchen is ideal for entertaining, featuring electric cooking, a dishwasher, and two sinks—including one in the central island bench, perfect for preparing meals while staying connected to guests.
There are three bedrooms—two with stunning water views—and all with sliding door access to the wrap-around deck, allowing you to enjoy sea breezes and natural light in every room. The home includes two bathrooms, one with a bathtub and separate shower, instant electric hot water, and a spacious laundry/butler’s pantry tucked away for convenience.
The open-plan living and dining space is surrounded by glass, capturing the tranquil bay outlook. A fireplace keeps the home cozy in winter.
A separate Sunroom, with power and water is a peaceful space for guests, an office, or a creative studio.
Practical Extras:
- High steel-frame carport – ideal for the island car, motorhome, or boat trailer
- Concreted steel stumps
- Septic and grease trap recently cleaned and emptied
- 6.6kW solar system plus a 7.5kW wired-in petrol generator for emergency island power outages
- Regular pest inspections
The Land
Set on 1953m² of gently sloping land, the property has retaining walls and is beautifully landscaped for privacy, productivity and low-maintenance living. It includes:
- Over 200 coffee trees
- Calypso and Bowen mango trees
- An abundance of citrus trees
- Bore water with full irrigation system
Whether you're launching a boat, relaxing by the pool, or harvesting your own coffee and fruit, this property offers an exceptional lifestyle in one of Lamb Island’s most desirable waterfront positions.
Contact local agent Kat Gawlik from Redlands Coast Realty to book your private inspection and free island tour today with a knowledgable local. 0497 887 953
About Lamb Island
Lamb Island (Ngudooroo) is a peaceful, close-knit community of around 500 residents, loved for its natural beauty and relaxed island lifestyle. Popular for fishing, kayaking, and sailing, the island also has a creative local economy with residents producing honey, coffee, and handmade goods. The Lamb Island Recreation Club features a bar serving well-priced drinks and a bistro offering delicious pub-style meals from Wednesday to Sunday. The social calendar includes trivia nights, pool comps, Jam Sundays for the musically inclined, bushcare and cane toad busting groups, community garden working bees, pickleball and soccer, a small library, and regular fruit, veg, and craft markets. There are also yoga and Pilates classes, along with acupuncture, massage, and other wellness practitioners offering their services to local residents. The island has a convenience store selling groceries, fuel, BBQ bottles, takeaway food, and coffee, plus a second-hand pop-up shop with a book exchange. With town water, electricity, NBN internet, and easy access to nearby islands and the mainland—via a 21-minute Translink passenger ferry to Redland Bay (just 50¢ each way and free inter-island travel) or a vehicle barge costing only $35 each way for residents—Lamb Island is an idyllic retreat growing in popularity for its charm, community spirit, and convenient 50-minute travel time to both Brisbane and the Gold Coast.
Disclaimer: We have in preparing this information used our best endeavours to ensure that the information contained here is true and accurate, but accept no responsibility and disclaim all liability in respect of any errors, omissions, inaccuracies or mis-statements contained in this document. Prospective purchasers should make their own enquiries to verify the information contained here.
Property Code: 3224
Property Features
- Above Ground Pool
- Above-Ground Pool
- Balcony
- Built In Wardrobes
- Built-in wardrobe
- Carport
- Ceiling fans
- Deck
- Dishwasher
- Fenced
- Fireplace
- Fully Fenced
- Garage
- Garden
- Jetty
- Ocean views
- Open Fireplace
- Solar Panels
- Split System Air Conditioning
- Undercover outdoor area
- Verandah
- Water frontage
- Water Views
- Workshop
Email a friend
You must be logged in and have a verified email address to use this feature.
Call Agent
-
Kat GawlikT. Barclay Real Estate

