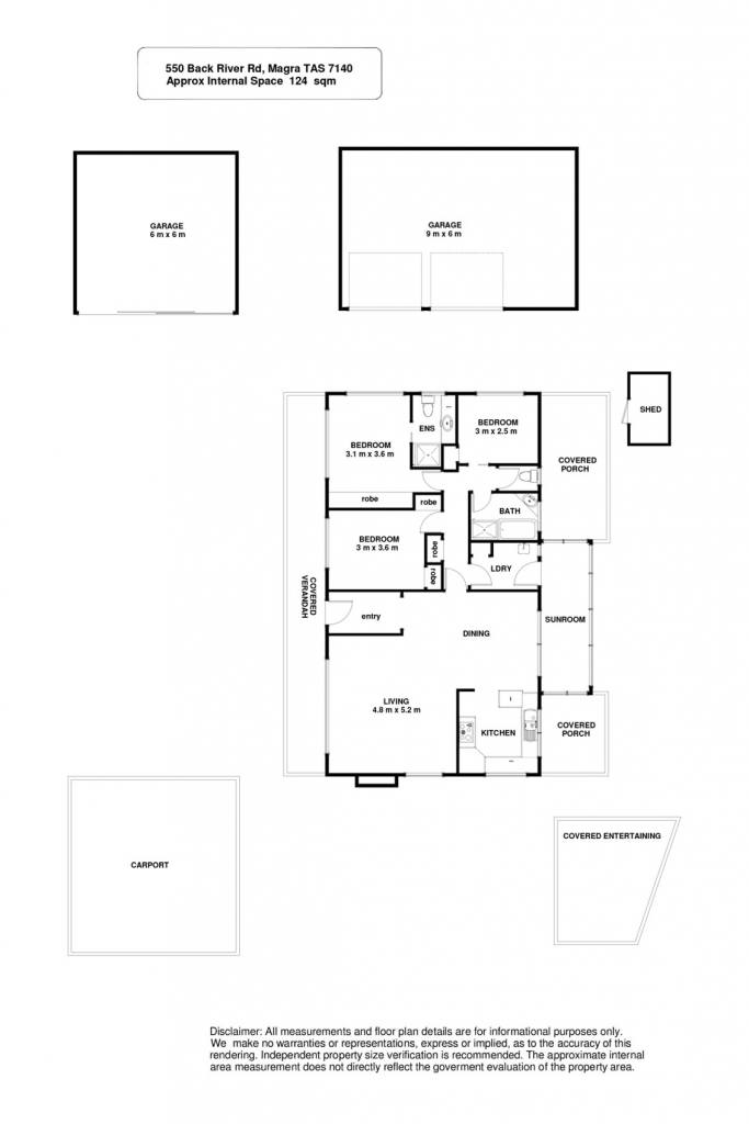
550 Back River Road Magra TAS 7140
For Sale Offers over $735,000
- Property Type House
- Land area approx 2.046ha
- Floor area approx 124sqm
- Region Tasmania
- Locality Derwent Valley
- Garages 4
- Carports 2
- Uncovered Carspaces 4
- Toilets 2
Carinya - A Peaceful Semi-Rural Retreat Just Minutes from Town
Welcome to Carinya, an idyllic semi-rural lifestyle property offering the perfect balance of space, comfort, and convenience. Set on 2.046 hectares (approx. 5 acres) of gently rolling pasture, this charming three-bedroom brick family home provides the freedom of country living while being only 6km (approx.) from the thriving township of New Norfolk.
Inside, the home features three generous bedrooms with built-in wardrobes, including a master suite complete with ensuite. The central family bathroom is well-appointed, and the spacious living room captures serene rural views through large picture windows. Year-round comfort is assured with a wood heater and reverse-cycle heat pump.
The open-plan kitchen and dining area offers excellent functionality, flowing through double glass doors to a light-filled sunroom and out to a flat, cemented undercover entertaining area, perfect for gatherings in any season.
Outdoors, the property shines with extensive infrastructure, including a three-bay garage, separate double garage, two-bay carport, full-length verandah, and a large shed ideal for stock feed or additional storage. The land is divided into two paddocks with well-maintained, easy-care gardens and the convenience of town water.
A wonderful lifestyle opportunity awaits at Carinya, a home that offers space, practicality, and peaceful rural living with urban amenities close by.
Roberts Real Estate have obtained all information in this document from sources considered to be reliable; however, we cannot guarantee its accuracy.
Prospective purchasers are advised to carry out their own investigations. All measurements are approximate.
Email a friend
You must be logged in and have a verified email address to use this feature.
Call Agent
-
Paul BelcherRoberts Real Estate Glenorchy

