6 Dr Abramowski Court Mildura VIC 3500
Sold $588,888
- Property Type House
- Land area approx 1083sqm
- Region Loddon Mallee
- Locality Mildura
- Toilets 2
Space to Grow, Location to Love
Dakota Whitehouse and Damian Portaro invite you to explore a rare combination of size, flexibility and future opportunity in one of Mildura's most sought-after neighbourhoods.
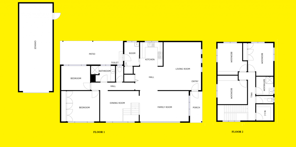
Positioned on a generous 1,084sqm allotment in a quiet court setting, 6 Dr Abramowski Court offers a substantial double-storey home with room for the whole family, and then some. With five bedrooms in total, including two conveniently located downstairs, this home adapts to multigenerational living, working from home, or simply spreading out in style.
Outdoors, it's the 9x6m shed with lean-to that truly elevates this property, a standout feature for anyone in need of serious storage, a workspace, or a place to park the toys. There's also ample backyard left to personalise: whether that's future landscaping, a pool, or an additional alfresco (STCA), the block offers room to grow.
This is a property that delivers lifestyle value today, and strategic upside tomorrow. Investors take note: with a rental appraisal of $630 - $650 per week, the numbers stack up for strong immediate returns in a high-demand rental pocket.
Property Features
- Air Conditioning
- Built In Wardrobes
- In Ground Pool
Email a friend
You must be logged in and have a verified email address to use this feature.
Call Agent
-
Damian PortaroRay White Mildura
Call Agent
-
Dakota WhitehouseRay White Mildura

