6 Harvey Road Forest Hill QLD 4342
For Sale Sold by Elders Laidley
Under Offer- Property Type House
- Land area approx 1.01ha
- Region Ipswich and West Moreton
- Locality Lockyer Valley
- Carports 4
- Garages 2
- Toilets 1
Space, Privacy & Family Fun on 1 Hectare!
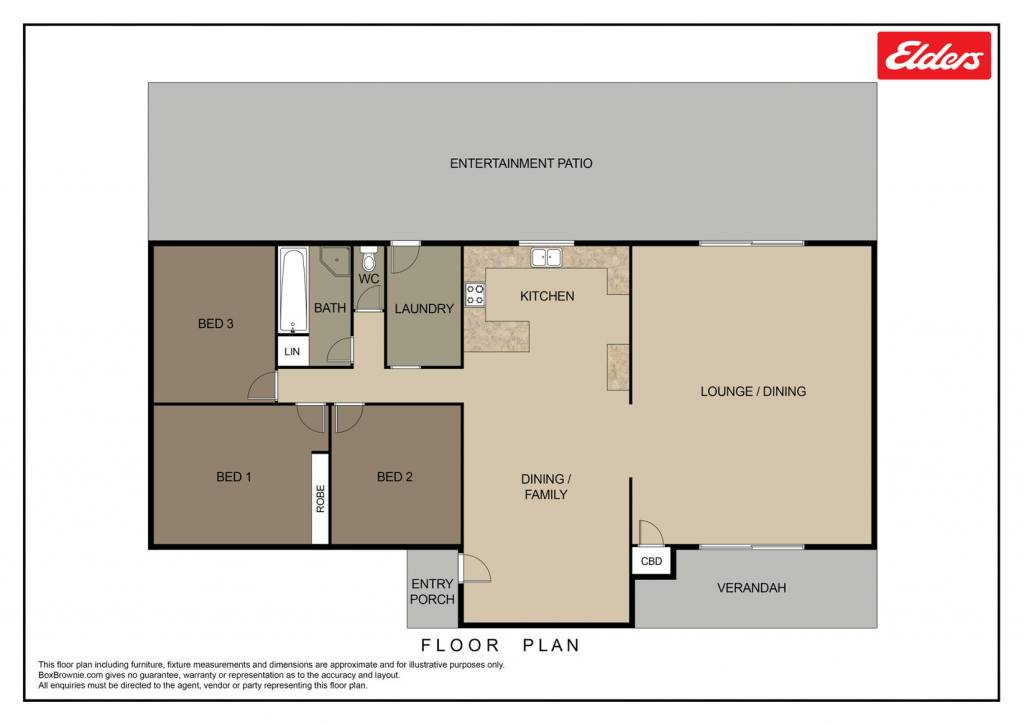
Arrive via a picturesque, tree-lined driveway where palms are adorned with impressively large elkhorns, instantly setting the tone for peace, space, privacy, and relaxed country living. The front yard is dotted with magnificent, mature bottle trees, adding character, shade, and a timeless sense of grandeur to this peaceful acreage retreat. Set on a fully fenced 1-hectare (2.49acre) block between Forest Hill and Plainland, this well-maintained brick home has been freshly painted internally and is ready for a family to move straight in.
The home features three bedrooms with ceiling fans and brand-new carpet, including a comfortable master with air conditioning and built-in robes. The central bathroom offers a shower over bath, complemented by a separate toilet - ideal for busy family mornings.
At the heart of the home is a generous, practical kitchen with ample storage, a standalone electric stove, and room for a large fridge. Overlooking the dining area, which can also serve as a family room, it's perfectly suited to everyday living and casual gatherings.
The expansive, light-filled lounge room is a true highlight, boasting raked ceilings, a split-system air conditioner, and large glass sliding doors that open to both the front patio and the rear entertaining area - creating seamless indoor-outdoor flow for family living and entertaining.
Step outside and enjoy everything this property offers for families. The spacious rear entertaining area looks out over the large dam, providing a wonderful setting where kids can play, explore, and enjoy the outdoors. With plenty of room for pets, backyard games, and weekend adventures, this is a space designed for growing families to spread out and enjoy.
Completing the package is a powered, lockable two-bay shed with workshop space, trickle-feed town water supported by two tanks, established gardens, and multiple outbuildings including a chook pen, dog run and pens, and various carports - delivering the ideal blend of lifestyle, functionality, and family-friendly acreage living.
School bus access is at your door servicing local private and state schools! Only 5 mins to great pubs, cafes and shops in the unique village of Forest Hill, 5mins to Plainland Precinct and 1hr to Brisbane!
Property Features
- Built In Wardrobes
- Carpeted
- Grey Water System
- Outdoor Entertaining Area
- Secure Parking
- Shed
- Water Tank
Email a friend
You must be logged in and have a verified email address to use this feature.
Call Agent
-
Angela NorthElders Real Estate Laidley

