62 Whiting Drive Seelands NSW 2460
For Sale $925,000-$975,000
- Property Type House
- Land area approx 7191.00sqm
- Region Northern Rivers
- Locality Clarence Valley
- Carports 2
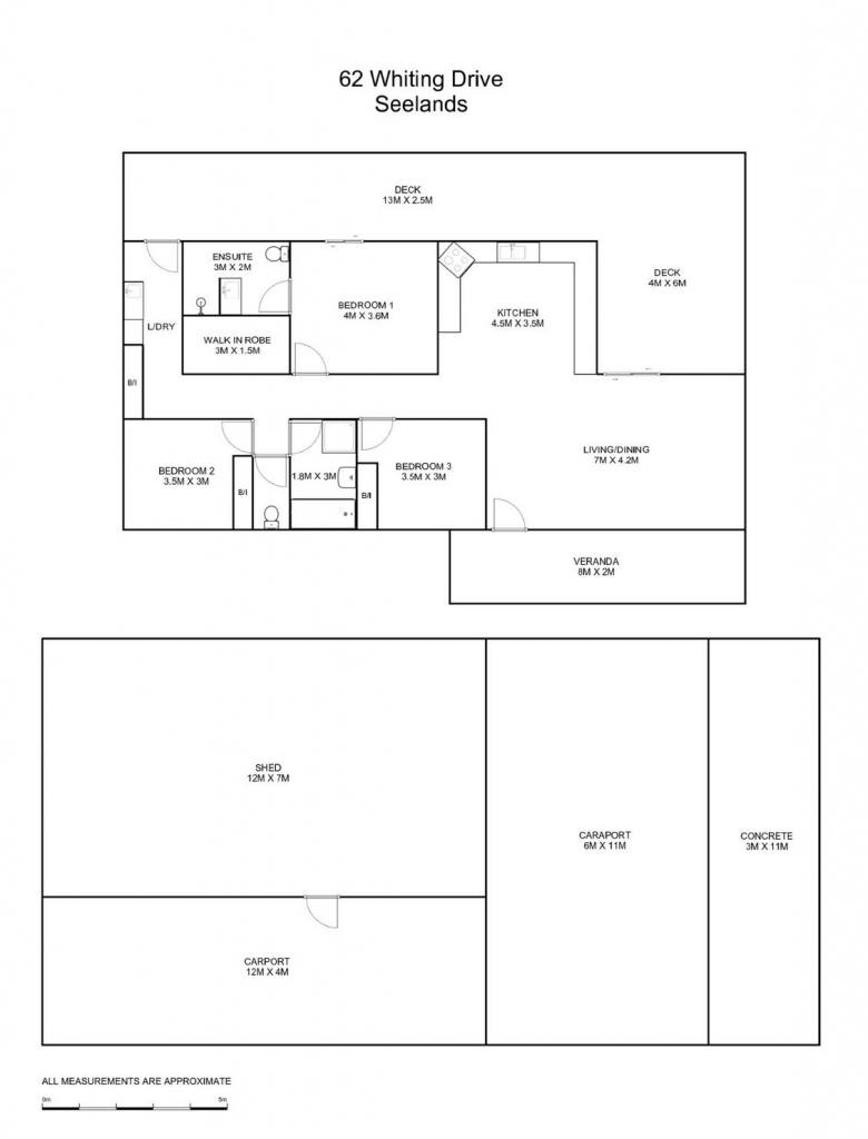
CLARENCE RIVERFRONT VANTAGE POINT
Set on the banks of the Clarence River at Seelands, this 7000 sqm lot features a Greg Cole constructed home (built 2017) and an outlook over a beautiful sweep of the water.
Built for retirement the owner was keen to kick back and enjoy his fishing era and from this home you can nearly cast a line in from the back door. The big covered timber verandah was an obvious design choice meaning life was mainly spent outside entertaining and enjoying the views and breezes.
The interior is spacious and modern. A big open lounge-living area and kitchen at one end integrates well with the covered verandah you'll eat most meals on.
The bedrooms and bathrooms up the hall are all in good order with a spacious en suite to master and great views.
Of course there is plenty of garaging. A mix of lock up space and covered space with caravans and boats in mind.
Secure this Clarence River front spot, improve the access to the water and watch your value surge!
Must now be sold to finalise estate.
Building report available.
Property Features
- Air Conditioning
- Built In Wardrobes
- Dishwasher
- Outdoor Entertaining Area
- Shed
Email a friend
You must be logged in and have a verified email address to use this feature.
Call Agent
-
Angus McKimmMcKimms Real Estate Grafton

