630 Red Bluff Road Bordertown SA 5268
For Sale NEW PRICE GUIDE - $1.6M
- Property Type Cropping
- Land area approx 67ac
- Council Rates $994.6 per annum
- Region Limestone Coast
- Locality Tatiara
- Uncovered Carspaces 3
- Toilets 4
- Garages 3
- Ensuite 2
Your Tree-Change Awaits
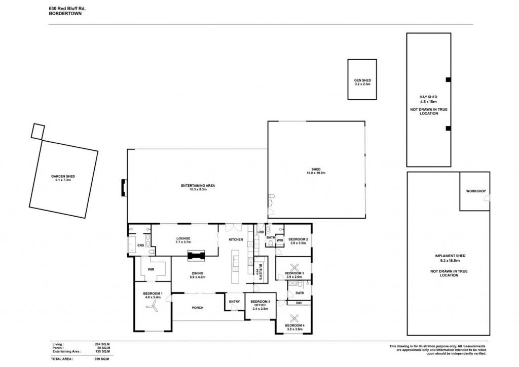
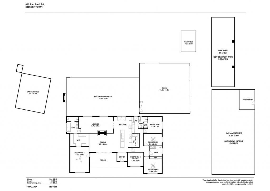
SAL Real Estate present to market 630 Red Bluff Road. Escape the urban rush and discover your sanctuary on 67 acres of pristine countryside-just a ten-minute drive from the heart of Bordertown. This exquisite five-bedroom, three-bathroom rural retreat seamlessly blends refined luxury with the freedom and stillness of acreage life.
Impeccably renovated, the home welcomes you with light-filled spaces and exquisite attention to detail. The master suite is your personal spa-deep soaking bath, double rain shower, and a custom walk-in robe await you. Entertain effortlessly in the gourmet kitchen, featuring a 5m waterfall island of Brazilian Caesar stone, dual Belling ovens, wine fridge, not one but two dishwashers, and a spacious bar as well as the expansive 16m x 8m entertaining area - designed for memorable gatherings.
Work the land or enjoy the peace of the surrounds - four well-fenced paddocks all with water troughs make space for horses or livestock. The property boasts an abundance of rural infrastructure, including sheds, bore, 100kL of rainwater, 22kva generator designed to kick in automatically and ideal cropping land -embodying a self-sufficient lifestyle.
Mornings begin with coffee on the verandah, framed by sweeping rural views. Days are filled with space for children to roam and explore while wildlife graze in the distance. As night falls, the sky transforms into a canopy of stars, offering a sense of peace city life can't provide. All this, while being only minutes from local schools, shops, and services-and just over two hours from Adelaide-delivering the ultimate balance of seclusion and convenience.
This is not just a home-it's your tree-change dream realised. Opportunities like this are rare. Fall in love upon viewing and let the peace of country luxury sweep you into a new pace of life.
Offers invited! Contact Chloe Rose today to book an inspection.
RLA1811
Email a friend
You must be logged in and have a verified email address to use this feature.
Call Agent
-
Chloe RoseSAL Real Estate - Naracoorte

