753 Karadoc Avenue Irymple VIC 3498
For Sale $500,000 - $550,000
Under Offer- Property Type House
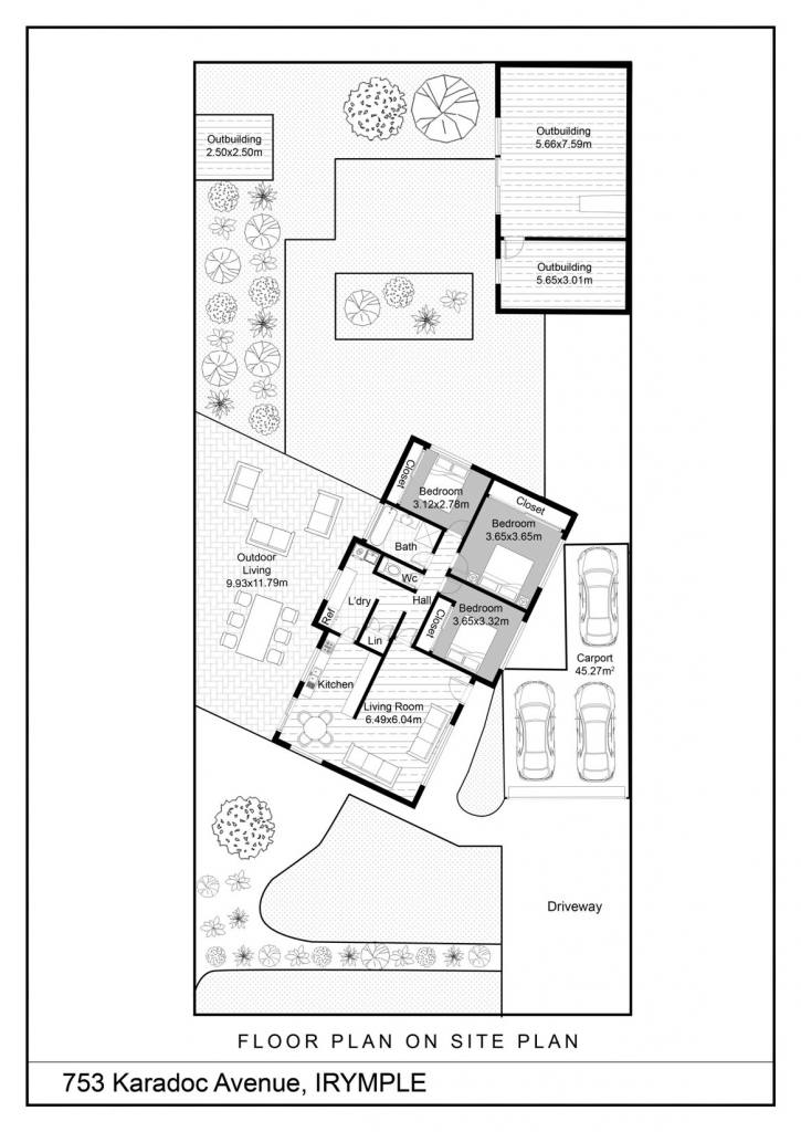
- Land area approx 774sqm
- Region Loddon Mallee
- Locality Mildura
- Carports 3
- Toilets 1
Move in & enjoy!
This home has been completely refurbished inside & out. Boasting a great modern kitchen and spacious modern bathroom and three generous bedrooms. An on-trend colour scheme throughout with split system heating & cooling plus ducted evap air con. Step outside and you will be very impressed with the massive private undercover outdoor entertaining area. A generous rear yard with large shed/ games room, fully lined with split system, smaller sheds, fernery-gazebo and your very own Pizza oven! If you like entertaining this home is for you! Offering 3 car undercover lock-up parking and popular Irymple location, ideal for first home buyers, downsizers & investors (est. rent $500-$520/wk), this home will not last!
Property Features
- Air Conditioning
- Built In Wardrobes
- Dishwasher
- Evaporative Cooling
- Fully Fenced
- Outdoor Entertaining Area
- Secure Parking
- Shed
Email a friend
You must be logged in and have a verified email address to use this feature.
Call Agent
-
Tim AldridgeMildura Property Advisers
Call Agent
-
Amanda AldridgeMildura Property Advisers

