8406 Calder Highway Red Cliffs VIC 3496
For Sale $499,950 - $549,500
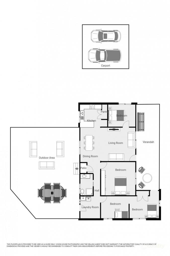
- Property Type House
- Land area approx 4001sqm
- Region Loddon Mallee
- Locality Mildura
- Carports 3
- Toilets 2
LIFESTYLE OASIS
* Hidden in its own private oasis and with vineyards surrounding on all three sides is this character property
* A wide red brick paved verandah and charming weatherboards greet you from the outside and lead you into a cosy and comfortable home
* Where an open lounge and meals extends from the front to the back of the house and adjoins the bright kitchen
* A flexible space leads to bedroom 3, ideal as a study, kids play area or extra bedroom for siblings to share that section of the home
* The evaporative air conditioning was updated recently, there is a lovely slow combustion fire and the bonus of solar power
* Outside is a massive, covered entertainment area, an external ablutions block, shedding and covered space for at least 3 vehicles
* Complete with a veggie garden, chook pen and beautiful established gardens
* Set on approximately 4,000m2, you feel like you are a million miles away from anywhere but in actual fact you are just 2 minutes in the car to all the amenities of Red Cliffs township
Upon arrival at all Open Inspections you will be required to present photo identification.
Please contact our office if you would like more information.
Property Features
- Dishwasher
- Built In Wardrobes
- Evaporative Cooling
- Outdoor Entertaining Area
- Shed
Email a friend
You must be logged in and have a verified email address to use this feature.
Call Agent
-
Robert J StephensCollie & Tierney First National
Call Agent
-
Shaun StephensCollie & Tierney First National

