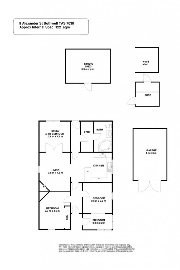
9 Alexander Street Bothwell TAS 7030
For Sale Offers over $449,000
- Property Type House
- Land area approx 1504sqm
- Floor area approx 122sqm
- Region Tasmania
- Locality Central Highlands
- Toilets 1
- Uncovered Carspaces 4
Charming Home on a Generous Block
Set on a large, level approximately1,504m² allotment, this charming residence offers space, versatility and exciting future potential (STCA). Full of character and warmth, the home features two generous bedrooms plus a study, which could easily function as a third bedroom, along with open plan living that creates a welcoming and practical layout for families or couples alike.
The renovated kitchen is well appointed and flows seamlessly into the living and dining areas. Outside, established gardens provide a peaceful setting, complemented by multiple outbuildings and an abundance of off street parking-ideal for those needing extra storage, workshop space or room for vehicles.
The large block size presents an excellent opportunity for future development, with potential for unit development subject to council approval (STCA). Ideally positioned within walking distance to the local post office, café and school, the property enjoys a friendly community atmosphere. Adding to the appeal, the town is experiencing ongoing growth, with plans for a new IGA further enhancing future prospects (STCA).
Offering comfort, character and outstanding potential, this is a rare opportunity to secure a versatile property with room to grow.
Roberts Real Estate have obtained all information in this document from sources considered to be reliable; however, we cannot guarantee its accuracy.
Prospective purchasers are advised to carry out their own investigations. All measurements are approximate.
Email a friend
You must be logged in and have a verified email address to use this feature.
Call Agent
-
Paul BelcherRoberts Real Estate Glenorchy

