90 George Street Quirindi NSW 2343
Sold $245,000
- Property Type House
- Land area approx 221sqm
- Region Northern Inland
- Locality Liverpool Plains
- Toilets 1
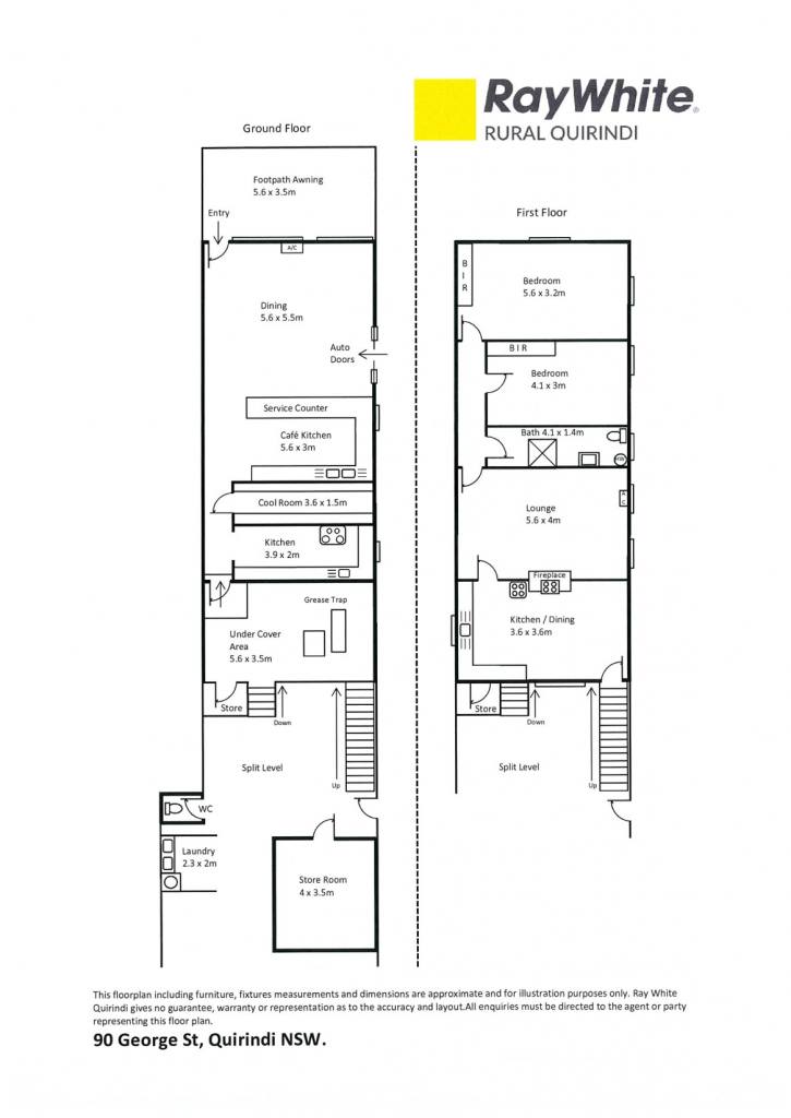
COMMERCIAL PROPERTY WITH APPARTMENT
Quality commercial property in prime location with high exposure on the main street and a two bedroom apartment.
Double brick construction on a 221sq,m block of land with side access.
Ground floor Café was previously leased at $250/wk and apartment is leased for $280/wk with a rental return of 11.1%.
Ground floor shop includes dining area, service counter with Rev cycle A/C, cool room, separate kitchen & preparation area.
Access to café is via a main street access door plus second disabled access through side auto doors, ensuring inclusivity for all customers.
Out the back is undercover grease trap, storage rooms, toilet and laundry.
Ideal as a café or would lent itself to many other business pursuits.
1st floor apartment with kitchen / dining, formal lounge, two bedrooms & bathroom.
Excellent growth potential in a prominent George Street frontage, offering excellent exposure.
This property is ideal for establishing or expanding your hospitality business in a bustling and visible location.
Further information please contact Luke Scanlon 0419495147, Ray White Quirindi on (02) 67461270, or visit our website at www.raywhitequirindi.com.au
Email a friend
You must be logged in and have a verified email address to use this feature.
Call Agent
-
Luke ScanlonRay White Quirindi