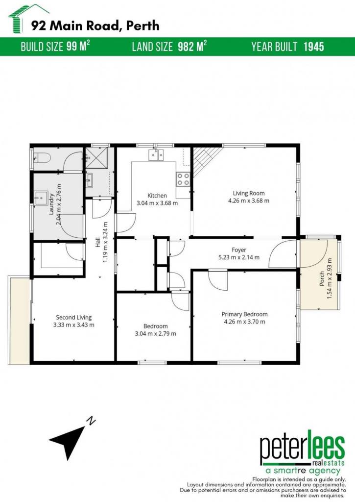
92 Main Road Perth TAS 7300
For Sale Offers Above $569,000
Under Offer- Property Type House
- Land area approx 982sqm
- Floor area approx 99sqm
- Council Rates $1250/year
- Water Rates $298/quarter
- Region Tasmania
- Locality Northern Midlands
When Opportunity Comes Knocking – This is One You'll Want to Answer
Wonderfully maintained and move-in ready, this inviting home will appeal to a broad range of buyers, whether you're a first-home buyer, downsizer or savvy investor.
Warm and cosy throughout, the home is comfortably serviced by both wood heating and electric heating and cooling. Beautiful timber floors enhance the charm, while the layout offers two bedrooms, two living areas, a walk-in pantry and excellent storage options.
Enjoy the convenience of nearby amenities while still relishing the peace and quiet of this lovely setting. Just 12 minutes from Launceston, Perth is a family-friendly and highly sought-after neighbourhood.
Set on a generous 982m² block with good side access, there is fantastic potential to simply enjoy a large backyard & parking, add a garage or shed (STCA), or explore further development options (STCA)
Contact today for further information.
*Peter Lees Real Estate has used a variety of sources to obtain information relating to this property. We believe all are reliable sources and have no reason to doubt the accuracy of the information, however we cannot guarantee it. Prospective purchasers are advised to make their own enquiries.
Boundary lines are indicative only.
Property Features
- Air Conditioning
- Heating
Email a friend
You must be logged in and have a verified email address to use this feature.
Call Agent
-
Larrisa BrickhillPeter Lees Real Estate
Call Agent
-
Larrisa BrickhillPeter Lees Real Estate

