B/91 Walkerville Terrrace Walkerville SA 5081
For Lease
- Property Type Office(s)
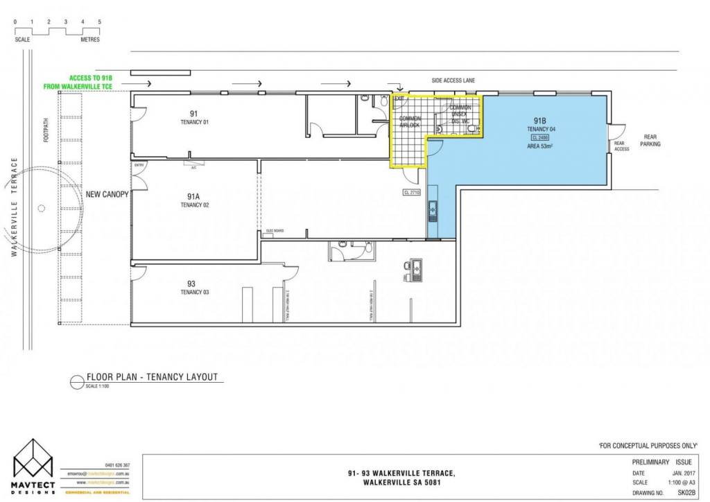
- Floor area approx 53sqm
- Region Adelaide Metropolitan
- Locality Walkerville
91B Walkerville Terrace, WALKERVILLE
Phone enquiries - please quote property ID 37929.
Light, Bright & Airy Boutique Studio/Office – 53 sqm
- Located in the heart of the Walkerville Terrace high street
- Currently operating as a health/wellbeing business
- Large open plan area with own kitchenette and shared uni-sex disabled WC
- North facing aspect with an abundance of natural light
- On-site tenant carparking
- Available 1 March 2026
This compact studio/office is conveniently located in the heart of Walkerville’s high street, in a group of four (4) tenancies, which includes a hair salon, health & fitness retailer and bakery / café.
The off-street space, which was fully refurbished several years ago, is largely open plan, with its own kitchenette, fully carpeted, reverse-cycle split system air conditioning, and has direct internal access to a shared uni-sex disabled WC.
It is accessed off a service corridor from the front of the property, together with rear access via the on-site tenant carpark.
It would be very well suited to a small business including office use, health / wellbeing, yoga / pilates, fitness, art studio, etc.
Please contact Chris Lucas for further details or to arrange for an inspection.
DISCLAIMER No Agent Business (www.noagentbusiness.com.au) is an Australian For Sale By Owner website operating since 1999. We proudly assist commercial property owners who are looking to sell or lease their own commercial property without paying any real estate commission. While every care has been taken to verify the accuracy of the details in this advertisement, the correctness cannot be guaranteed.
Email a friend
You must be logged in and have a verified email address to use this feature.
Call Agent
-
No Agent PropertyNo Agent Property

