Brisbane QLD 4000
For Sale $2,700,000
- Property Type Business
- Floor area approx 540sqm
Established Laser Cutting & Metal Processing Business
Phone enquiries - please call 1300 594 794 and quote property ID 38089.
Profitable, Systemised & Scalable
This business specialises in professional laser cutting, profiling and metal processing services for both small and large-scale projects. Operating primarily as a B2B, Monday–Friday industrial service, it supports a wide range of clients across manufacturing, construction, engineering &related sectors.
Established in 2004, the business has traded continuously for over 21 yrs & has built a strong reputation for precision, reliability and quality outcomes. The sale includes all core operating assets, including modern laser cutting machinery, specialised processing equipment, dedicated software systems, established branding, intellectual property, customer databases and operating procedures.
The business is highly profitable, delivering strong and consistent earnings supported by repeat clients and ongoing referral work. Financial performance has remained steady year on year, reflecting consistent demand and a resilient market position.
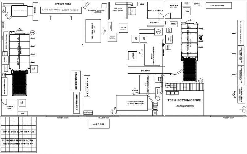
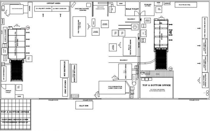
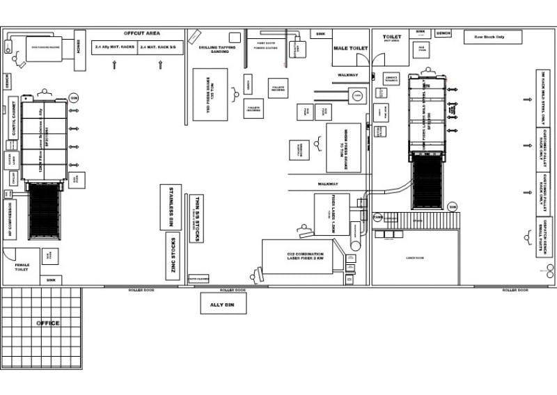
Based in Brendale, Qld, the business operates from impressive industrial premises featuring a large workshop, modern fit-out, ample storage and efficient workflow layout. The location offers excellent access to suppliers, trade clients and major transport routes. The premises are secured under a commercial lease, providing operational stability.
The operation is well systemised, with documented processes, job tracking software & experienced staff in place, allowing for smooth day-to-day management. A skilled team supports production and operations, reducing reliance on the owner and enabling flexible involvement.
This opportunity would suit an owner-operator with manufacturing or technical experience, or an investor seeking a business largely under management. No specific licences are required beyond industry-standard compliance. The current owner’s involvement is moderate and focused on oversight rather than hands-on production.
There are clear opportunities for growth through increased marketing, extended services, additional shifts or capacity expansion. The vendor is selling due to succession planning and is willing to provide training and transition support to ensure a seamless handover.
DISCLAIMER No Agent Business (www.noagentbusiness.com.au) is an Australian For Sale By Owner website operating since 1999. We proudly assist business owners who are looking to sell their own business without paying any broker commission. While every care has been taken to verify the accuracy of the details in this advertisement, the correctness cannot be guaranteed.
Email a friend
You must be logged in and have a verified email address to use this feature.
Call Agent
-
No Agent Property - QLDNo Agent Property

