Level 1/43 Albert Street Abbotsford VIC 3067
Conveniently located in leafy Abbotsford
Phone enquiries - please quote property ID 32908.
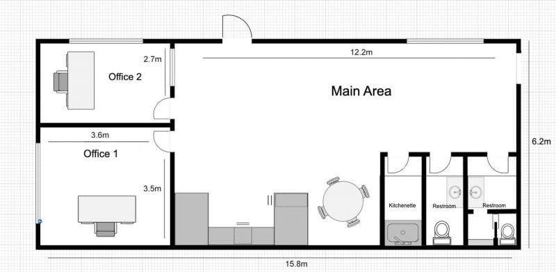
Conveniently located in leafy Abbotsford, less than 4 km from the CBD and 24 km from Tullamarine Airport with plenty of public transport close by. Controlled heating and cooling, heaps of natural light. Cost includes all outgoings, and 24/7 access.
This space is light, bright, clean, male and female toilets and own kitchen , boardroom also available on booking. On the border of Richmond and Abbotsford, surrounded by great pubs, fantastic cafes and coffee roaster and eateries. Victoria Gardens is only 5 minutes away..
Private parking optional..
DISCLAIMER No Agent Business (www.noagentbusiness.com.au) is an Australian For Sale By Owner website operating since 1999. We proudly assist commercial property owners who are looking to sell or lease their own commercial property without paying any real estate commission. While every care has been taken to verify the accuracy of the details in this advertisement, the correctness cannot be guaranteed.
Email a friend
You must be logged in and have a verified email address to use this feature.
Call Agent
- 
                                No Agent Property - VICNo Agent Property


 
         
     
                                 
                                 
                                 
                                