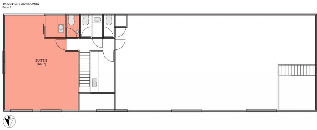
Suite 5/49 Raff Street Toowoomba City QLD 4350
For Lease $15,600 Per Annum + GST + Outgoings
- Property Type Office(s)
- Land area approx 40sqm
- Floor area approx 40sqm
- Region Darling Downs and South West
- Locality Toowoomba
Ready to Occupy Suite
Presenting for lease Suite 5 of 49 Raff Street in the Toowoomba CBD. With fusion of vintage charm, this suite offers a unique opportunity for businesses seeking a distinguished and nostalgic environment. Embrace the allure of classic architecture while enjoying the convenience of modern amenities.
Features included
- 40 sqm. of office space
- Kitchenette
- Refurbished toilet facilities
- Updated floor coverings
- Recently re-painted
- Entry & Exit via Raff Street
- Data-cabling, side access and great natural light
- 11.3m street frontage on Raff Street
- Situated on the fringe of the CBD
- Onsite car parks plus loading area
- Secure fully fenced yard
To arrange an inspection or learn more please contact the exclusive agent Alice Ridgway on 0488 085 880.
Email a friend
You must be logged in and have a verified email address to use this feature.
Call Agent
-
Alice RidgwayQLD Hot Property
Call Agent
-
Aron BullQLD Hot Property

