106 Railway Terrace Sutherlands SA 5374
Sold $780,000
- Property Type House
- Land area approx 468ac
- Region Yorke and Mid North
- Locality Goyder
- Carports 4
- Toilets 1
UNDER CONTRACT BY JEFF LIND
Country Farmhouse on 468 Acres - Looking to be Self Sufficient?
Escape to the country to this 4 bedroom country farmhouse with neighbours at a distance and associated sheds and outbuildings set on a large 468 Acre ( 189.4 Hectare ) allotment with approximately 300 acres suitable for cropping which is currently share farmed and the balance being native mallee scrub and house yards.
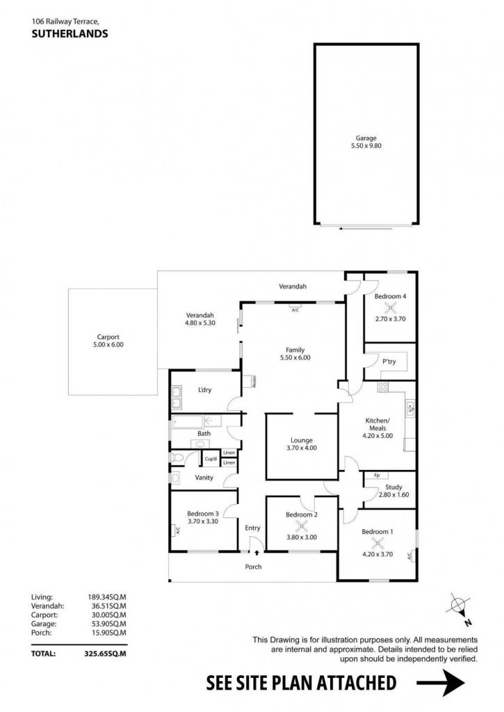
The home is in good condition and has been re roofed in 2003 and features a large eat in country kitchen, walk in pantry, 4 good size bedrooms, a large two room family lounge, an office, large bathroom and laundry.
Outdoors there is a rear verandah for outdoor living, a solar electric system, a large workshop shed with pit, an in ground stone water tank with pump to house, an old stone food cellar and a fenced house yard.
Other shedding includes a 15m x 9m implement shed, a large 9m x 15m approx storage/shearing shed, an old 17.3m x 9.7m approx animal shed and another stone building which could be put to a variety of uses.
Another feature of the property is the numerous bird aviaries and yards and the large panel fenced adjoining yard which could be used for game birds again or a variety of other animal types. There are also large steel sheep yards, dog yards, a horse yard and shelter and a fruit tree orchard.
The property is serviced with mains water and mains electricity and is ideal for motorbike riding or shooting.
The property is zoned Rural.
So if you have been looking for quiet country living away from neighbours and the opportunity of self sufficiency and a versatile property then this is the one for you.
For details or to inspect call Jeff Lind on 0413186214.
Ready to make an offer? Head to eldersgawler.com.au, select the property, and click the 'Make an Offer' tab to submit your offer online in just a few steps.
All information contained herein is gathered from sources deemed to be reliable. However, we cannot guarantee its accuracy and interested persons should seek their own enquiries.
Property Features
- Outdoor Entertaining Area
- Shed
- Water Tank
Email a friend
You must be logged in and have a verified email address to use this feature.
Call Agent
-
Jeff LindElders Gawler
Call Agent
-
Jeff LindElders Gawler

