118 Lefroy Avenue Herne Hill WA 6056
For Sale From $ 2.49 mill
Under OfferCottage Lovers, Horse lovers & Big Big Big Shed Lovers - What A Package
Set on 5 pristine acres of lush pasture with winter creek winding through and an abundant bore water supply, this cute, picture perfect cottage delivers charm, character and lifestyle in equal measure. Recently renovated yet rich with timeless appeal, the home is just the beginning. Boasting a whopping 650 sqm plus shed and workshop, flood lit dressage arena and fully irrigated paddocks, this could be your ultimate equine escape or dream setup for those serious toys. Rare defined and impossible to replicate, this is a unique offering you will be hard pressed to find again.
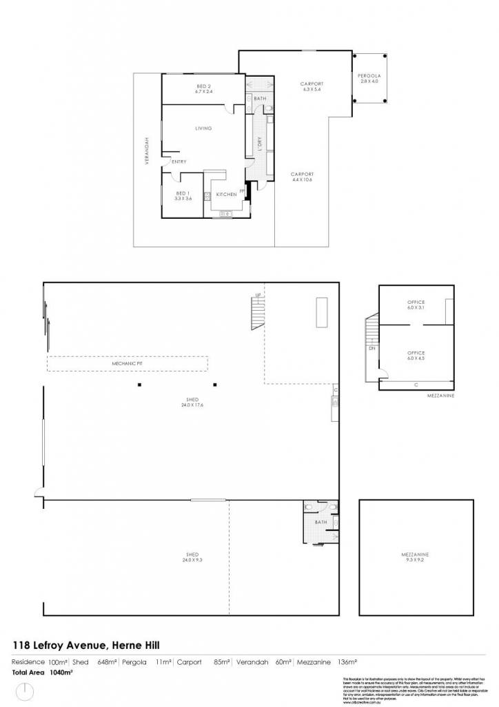
2 bedroom 1 bathroom original cottage fully renovated
Classic and refurbished wrap around verandahs
Massive sized shed and workshop-approx 650 sqm's
3 phase power, 2 room partitioned office with aircon
Entertaining bar area, mezzanine floor and bathroom
12 metre mechanics pit with own power, lighting & pump
Fantastic bore water supply (2 bores) 3000 kL licence
Property fully reticulated with 13 stations (impressive)
Your very own winter creek flows through middle of property
The property is fully fenced and dog proofed for horse enthusiast
60 metre x 25 metre flood lit dressage arena with viewing platform
Large Kubota 30 kVA back up power generator on site
Twin security electric gates in and out of property & CCTV
Situated on a magnificently presented 5 acres in prime location
An enormous amount of extra hard stand ancillary vehicle parking
For more information or to arrange a viewing, please call
PATRICK HARPER - 0413 440 107
Disclaimer:
This information is provided for general information purposes only and is based on information provided by the Seller and may be subject to change. No warranty or representation is made as to its accuracy and interested parties should place no reliance on it and should make their own independent enquiries.
Property Features
- Alarm System
- Dishwasher
- Fully Fenced
- Gym
- Outdoor Entertaining Area
- Shed
- Workshop
Email a friend
You must be logged in and have a verified email address to use this feature.
Call Agent
-
Patrick HarperThe Agency Perth

