12 Samphire Street Ascot WA 6104
For Sale From $2.75mil
In a word: Scale
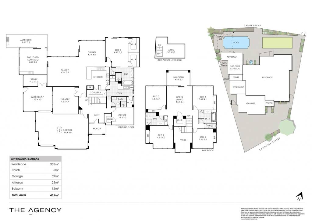
Positioned within the exclusive Ascot Waters Estate, 12 Samphire Street redefines scale, quality and multigenerational design. Built by Atrium Homes in 2012, this riverfront residence spans 465 square metres of total area across a remarkable 890 square metre landholding, making it one of the largest within the estate.
Purpose-built for family connection and privacy, the main living, dining and master suite occupy the ground floor, creating a layout that blends functionality with flexibility for extended families or guests. Flowing living spaces open directly to the enclosed alfresco, where a granite-topped outdoor kitchen, bar fridge and solar heated pool create a setting made for entertaining and relaxation under northern light.
Upstairs, four additional bedrooms, two bathrooms and a living retreat open onto a balcony that captures the morning sun and tree lined outlooks. Every element reflects enduring craftsmanship and generous scale, creating a home designed for comfort, connection and longevity.
The Details That Matter
• Five bedrooms and four bathrooms, including ground floor master suite with spa ensuite
• 465 square metres of total area on an 890 square metre landholding
• Positioned within the exclusive Ascot Waters Estate
• Designed for multigenerational living with main suite and primary living zones downstairs
• Solar heated chlorine pool with enclosed alfresco and outdoor kitchen
• Theatre room, office, and workshop
• Triple garage with attic roof space storage
• 3 kilowatt solar system, ducted and split system air conditioning
• Bosch security system, CCTV and video intercom
• Smart wiring throughout with FTTP internet
Why You'll Stay
This is a home built for living on a grand scale. With every comfort catered for, from the solar heated pool and outdoor entertaining to the self contained upstairs wing, it is ideal for families seeking flexibility without compromise. Whether hosting across the open plan living zones, working from the dedicated office, or retreating to the private master suite, every element has been designed with space, security and lifestyle in mind. With Swan River trails at your doorstep and Perth city within easy reach, 12 Samphire Street offers the rare combination of size, serenity and convenience that defines Ascot living.
Year Built: 2012
Water Rates: $1,871.24 pa
Council Rates: $3,414.58 pa
Rental Estimate: approx $1,400 pw
Disclaimer:
This information is provided for general information purposes only and is based on information provided by the Seller and may be subject to change. No warranty or representation is made as to its accuracy and interested parties should place no reliance on it and should make their own independent enquiries.
Email a friend
You must be logged in and have a verified email address to use this feature.
Call Agent
-
Paul TonichThe Agency Perth
Call Agent
-
Corey AdamsonThe Agency Perth

