13 Pagnell Way Swan View WA 6056
Sold $832,000
WELCOME HOME
There's a gentle charm to 13 Pagnell Way that greets you the moment you arrive. Set behind a secure front fence - ideal for keeping little ones safely away from the street, the home sits quietly in a peaceful pocket of Swan View, surrounded by greenery and the soft rhythm of this much-loved neighbourhood. It's the kind of property that welcomes you without fuss, where every space has been thoughtfully shaped for comfort, connection and ease of living.
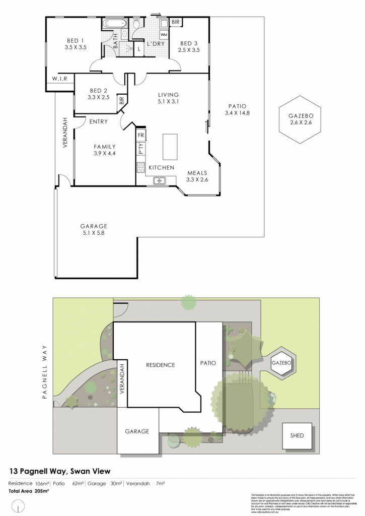
Stepping through the front door, the formal lounge offers an inviting first impression. A large picture window captures the garden beautifully, drawing in soft natural light and creating a serene setting for relaxed evenings or quiet Sunday mornings. A classic French door leads you through to the open-plan family, meals and kitchen zone, where earthy slate flooring brings character and a grounded sense of home. The renovated kitchen is wonderfully considered, complete with glossy cabinetry, stone benchtops, premium NEFF appliances and an integrated microwave tucked neatly under the breakfast bar. The bay-window meals area feels like the heart of daily life, opening to the garden backdrop and offering a lovely spot to gather throughout the day.
A second French door leads to the bedroom wing, where the home's recent updates shine. Fresh neutral paintwork and plush new carpets elevate the entire zone, giving each room a calm, contemporary softness. The main bedroom enjoys a peaceful outlook over the front garden, complemented by a walk in robe, sheer curtains and feature windows with timber shutters. The semi-ensuite bathroom and the additional two bedrooms - each with built-in robes - continue the sense of thoughtful care and practicality. The laundry, separate toilet and hallway storage complete this private, restful section of the home.
Outdoors, the home truly comes to life. A full-length patio stretches along the rear, perfect for those long Summer lunches or evenings watching the City lights twinkle through the trees. Moss-rock steps lead to terraced garden spaces, a lush lawn and a charming gazebo that invites quiet moments or lively gatherings.
Here are just some of the many features this beautiful home has to offer;
FRONT OF HOME
-Situated in a desirable pocket of Swan View
-Front gravel area to park additional cars on
-There is a front fence around the property for additional privacy
-The fence has a large double gate at the opposite end of the driveway
-There is a double driveway leading up to a double carport with an electric roller door
-There is a lush lawn area surrounded by limestone retaining
-There are freshly mulched garden beds with easy care shrubs
-There is reticulation in both the lawn and the garden area
-A garden path leads up to the front door
INSIDE THE HOME
-The front single front door has a decorative timber screen door plus a solid timber entry door
-This front door leads straight in to the spacious lounge room
-There is a large picture window in this room that overlooks the front garden
-There is a white roller blind on this window for privacy
-There is a gas bayonet for heating
-This room has a French door separating the lounge from the rest of the home
-The main family zone of the home features a living area, a meals area and a beautifully renovated kitchen
-The meals area is set in a lovely bay window to take in the view of the picturesque garden
-The renovated kitchen features gloss cabinetry and stone bench tops
-There is a 600mm Neff electric oven plus a Neff five burner gas cooktop
-The kitchen also features a Neff integrated microwave under the breakfast bar
-There is also a dishwasher plus a Franke double undermount sink
-The kitchen has overhead cabinetry for additional storage
-There is wall to wall windows along the rear of the home plus a glass sliding door to take in the beautiful views of the garden and the City lights beyond
-These windows all have tinting on to protect the home from the afternoon sun
-A central hallway leads to three generous bedrooms plus a bathroom and laundry
-The main bedroom is located at the front of the home and has views over the front yard
-There are sheer curtains plus a white roller blind on the window
-There are two feature windows behind the bed with timber Venetian shutters on each one
-The main bedroom features a walk-in robe with built in shelving and drawers
-The bathroom is situated next to the main bedroom and has a door to enter from the bedroom as well (semi ensuite)
-The bathroom has a bath, a shower plus a vanity
-Bedroom two and three both have built in robes
-All three bedrooms have brand new cream coloured carpet
-The laundry features a trough plus a built in linen cupboard
-There is a separate toilet in the laundry as well
-There is a glass sliding door to access the side of the yard
-There are external roller shutters on the bathroom and laundry
-The home has been freshly painted in a light neutral colour to suit any decor
-There is light coloured slate flooring throughout the main living zones of the home
-There is ducted evaporative air conditioning throughout the home
OUTSIDE
-There is a fantastic patio that stretches the length of the house
-It has a gabled roof at the centre and a flat roof on both edges
-There is clear Perspex sheeting across the patio for filtering additional light into the home
-There are roll down awnings along the back and the side of the patio to stop the afternoon sun
-A stunning weeping mulberry tree takes pride of place in the backyard
-The rear of the yard is terraced down with beautiful stone stairs separating the garden beds
-A lush buffalo lawn area can be found at the bottom terrace of the garden
-There is a central gazebo with brick paving as a feature in the centre of the lawn
-There is a garden shed with a concrete floor at the rear of the property
-The rear of the carport is open for easy access
-The opposite side of the house has a large gate and a wide footpath to bring larger items into the back yard
-The home has a Rinnai instantaneous gas hot water system
ADDITIONAL INFORMATION
- Shire rates are currently $2,307 subject to change
- Water rates are currently $788 subject to change
- Rental estimate is around $710 per week
-The home was built in 1991
-Located close to Brown Park Recreation Centre with sporting fields and activity groups
-Walking distance to Swan View Primary School and High School
-A short drive to Swan View Shopping Centre with a Coles and other specialty stores
-Only a 20 minute drive to the Perth Airports so great for FIFO workers
-The Shire of Mundaring have the following approvals on file:
1990 residence
1992 pergola
1999 patio
2008 patio
Set on a generous 700m² and moments from parks, schools and local conveniences, this is a home that has been cared for, renewed and ready to offer its next owners a place to grow, rest and create memories that last.
* ** Please Note - This home is being sold using a platform called Openn Offers**
This platform allows buyers to make an offer and if multiple offers are made, you will then be able to see in real time where your offer sits in the ranking.
The highest offer may not always be the winning offer as it comes down to the conditions as well such as finance, cash or a subject sale offer as examples.
To make an offer simply go to: https://www.openn.com/shanes
The seller, at their absolute discretion, may accept or reject any offer made, without any obligation to provide any reasons before the offer's due date. If your offer is not accepted, the buyer will have no recourse against the seller, the agent, or The Agency.
Disclaimer:
This information is provided for general information purposes only and is based on information provided by the Seller and may be subject to change. No warranty or representation is made as to its accuracy and interested parties should place no reliance on it and should make their own independent enquiries.
Property Features
- Air Conditioning
- Built In Wardrobes
- Dishwasher
- Evaporative Cooling
- Fully Fenced
- Gas Heating
- Outdoor Entertaining Area
- Remote Controlled Garage Door
- Secure Parking
- Shed
Email a friend
You must be logged in and have a verified email address to use this feature.
Call Agent
-
Shane SchofieldThe Agency Perth

