158 McDonald Street Joondanna WA 6060
Sold $1,955,000
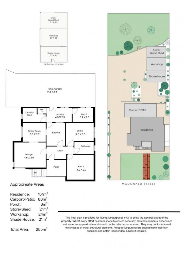
- Property Type House
- Land area approx 1062.00sqm
- Floor area approx 1957sqm
- Region Perth
- Locality Stirling
- Carports 2
CHARACTER CHARM ON 1062SQM R30 LAND!
An outstanding, once in a lifetime opportunity has just hit the market in Joondanna! On offer is a beautifully renovated 1950's cottage that sits on 1062sqm of prime, R30 zoned, blue chip land, creating an abundance of options and opportunities for switched on buyers.
Thoughtfully updated throughout, the home itself offers the perfect blend of classic appeal and contemporary living. Extensive renovations have transformed the property, including a new kitchen, bathroom and laundry, along with updated plumbing, restumping, insulation, fresh paint and expertly polished floorboards. Outdoors, the landscaped front garden with new fencing enhances street appeal, while a substantial raised patio at the rear provides an excellent space for entertaining.
Whilst the home itself is simply stunning, its standout feature is the land it sits on, offering incredible flexibility and exciting future potential.
Subject to City of Stirling and WAPC approvals, options include:
- Retain the existing home and subdivide to create a rear lot, with further potential for future subdivision
- Retain the home and develop two generously sized lots
- Demolish and construct three new residences
- Demolish and build two street-front homes
Alternatively, take advantage of the generous landholding to extend the current home or add lifestyle features such as a pool, workshop or ancillary accommodation.
Positioned in the increasingly sought-after suburb of Joondanna, this address offers absolute convenience and connectivity. Located less than 6km from the Perth CBD and with public transport within easy reach, commuting is effortless. With extremely close proximity to Dog Swamp and The Mezz shopping centres, and with the vibrant café strips of Mount Hawthorn, Leederville, North Perth and Mt Lawley all just minutes away, you'll be spoilt for choice here when it comes to shopping and entertainment!
This is a rare opportunity to secure a property that delivers immediate comfort with exceptional scope for future growth.
Council Rates: Approx. $1704 p.a
Water Rates: Approx. $1200 p.a
For further information, please contact Ralph or Carla, or join us at one of our scheduled home opens.
Disclaimer:
This information is provided for general information purposes only and is based on information provided by the Seller and may be subject to change. No warranty or representation is made as to its accuracy and interested parties should place no reliance on it and should make their own independent enquiries.
Email a friend
You must be logged in and have a verified email address to use this feature.
Call Agent
-
Ralph SeymoreThe Agency Perth
Call Agent
-
Carla YazmadjianThe Agency Perth

