17 A & B Atherton Street Mareeba QLD 4880
For Sale Offers Over $800,000
- Property Type Duplex/Semi-detached
- Land area approx 1012sqm
- Region Far North Queensland and Torres Strait
- Locality Mareeba
- Carports 1
- Garages 1
- Toilets 3
2 HOMES, CENTRAL LOCATION, UNIT POTENTIAL
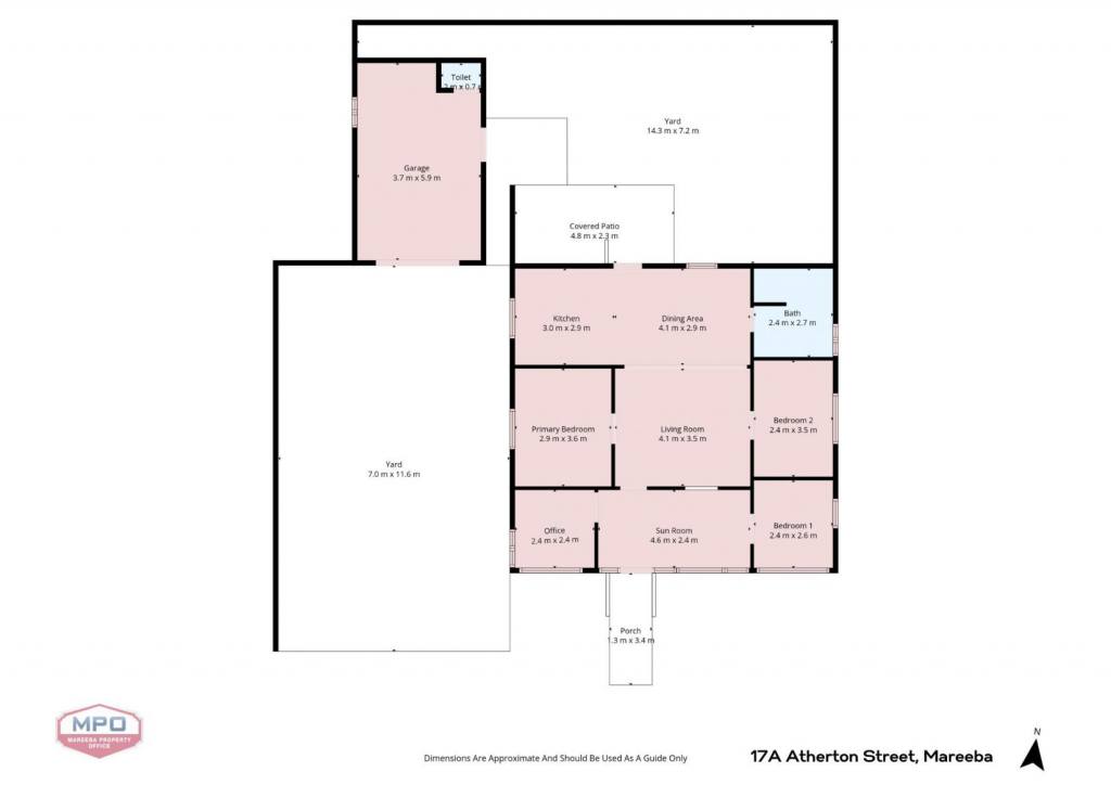
17A:
Perfectly positioned just moments from the local CBD, this charming three-bedroom home with an additional study offers an exceptional blend of character, comfort and convenience, all within a five-minute (or less) walk to shops, cafés and essential services.
From the moment you step inside, the home’s high ceilings create a wonderful sense of space and light. Vinyl flooring flows through much of the home, providing a durable and low-maintenance finish, while the lounge and dining areas are softened with carpet, creating warm and inviting spaces to relax or entertain. The living area is fitted with a split-system air conditioner, ensuring comfort throughout the seasons.
Property Features:
• 3 bedrooms + 1 study
• 1 bathroom
• Fully fenced
• Vinyl flooring
• Carpet in lounge and dining
• Shed/garage + 2nd toilet
• Split-system air-conditioning in living room
• Sunroom
• High ceilings
• Timber kitchen
• Security doors
• Vinyl cladded house exterior
• Located next to the local CBD – 5 mins or less walk
The timber kitchen is both practical and full of charm, offering ample bench space and storage while remaining central to the home. Three well-sized bedrooms are complemented by a versatile study, ideal for a home office, hobby room or additional storage. The bathroom is conveniently located to service the household with ease.
A sunroom adds an extra layer of flexibility, perfect for enjoying a quiet morning coffee or creating an additional living space. Outside, the fully fenced yard provides privacy and security, while a shed/garage offers valuable storage or workshop potential. Security doors and durable vinyl cladding complete this well-presented home, making it an ideal option for homeowners or investors seeking a prime CBD-adjacent location.
17B:
Located just moments from the heart of the local CBD, this inviting four-bedroom home offers a lifestyle of comfort, convenience and practicality, all within a five-minute (or less) walk to shops, cafés and everyday amenities.
Step inside to discover a well-designed layout that caters to easy living. Vinyl plank flooring flows through the main living areas, providing a modern, low-maintenance finish, while soft carpeted floors in each bedroom create a warm and comfortable retreat. All four bedrooms are generously sized and feature built-in wardrobes and ceiling fans, ensuring year-round comfort for the whole household.
The timber kitchen is both functional and full of character, offering ample storage and bench space, complemented by an evaporative air-cooling vent to help keep the space comfortable while cooking. The central bathroom is well positioned to service the home with ease.
Property Features:
• 4 bedrooms (1 with air-conditioning)
• 1 bathroom
• Vinyl plank flooring
• Ceilings fans in all rooms
• Built-in wardrobes + 1 walk-in wardrobe
• Carpet flooring in bedrooms
• Undercover carport
• Security screens/doors
• Garden shed
• Evaporative air-cooling vent in kitchen
• Timber kitchen
• Located next to the local CBD – 5 mins or less walk
Outside, the property continues to impress with an undercover carport providing sheltered parking, along with security screens and doors for added peace of mind. A handy garden shed offers extra storage for tools and equipment, keeping the yard neat and organised.
Whether you’re a family, investor or someone seeking a home close to the action, this property’s unbeatable location next to the CBD combined with its practical features makes it an outstanding opportunity. Enjoy the ease of walking everywhere while coming home to a comfortable and well-appointed residence.
From all of us at Mareeba Property Office, we wish you every success with your property search. Phone for an appointment to look through anytime.
Disclaimer:
We have in preparing this advertisement used our best endeavours to ensure the information contained is true and accurate but accept no responsibility and disclaim all liability in respect to any errors, omissions, inaccuracies or misstatements contained. Prospective purchasers should make their own enquiries to verify the information contained in this advertisement.
Property Features
- Air Conditioning
- Built In Wardrobes
- Ceiling fans
- Fully Fenced
Email a friend
You must be logged in and have a verified email address to use this feature.
Call Agent
-
John FalvoMareeba Property Office
Call Agent
-
Mareeba Property OfficeMareeba Property Office

