2 Killarney Street Temora NSW 2666
Tender FOR SALE BY EXPRESSION OF INTEREST
- Property Type Acreage/Semi-rural
- Land area approx 5.6ac
- Region Riverina
- Locality Temora
- Garages 3
- Toilets 1
RARE FIVE-ACRE FIND
Set on approximately 2.29ha (5.67 acres) this impressive 3-year-old Colourbond "shed house" delivers the perfect blend of modern comfort and rural functionality. With proximity to the Temora Showground and Temora Trotting Track, the location is ideal for equine enthusiasts or anyone seeking space and lifestyle convenience.
The property is currently divided into two well-fenced paddocks, each serviced by troughs, and further enhanced by electric fencing, two stables, and a dedicated dog yard. The securely fenced house yard features an established lawn area and a private entertaining space with direct access from the kitchen-perfect for relaxed outdoor living. A large open bay provides excellent storage for caravans, floats, machinery, or oversized vehicles.
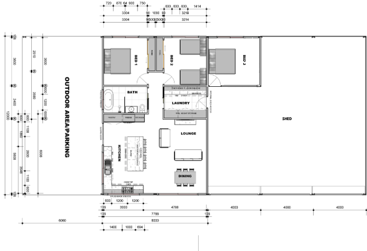
Inside, the home boasts a neutral and cohesive colour palette throughout. The spacious open-plan kitchen, living, and dining area forms the heart of the home, offering generous storage, an island bench, electric stove, and stainless steel dishwasher-designed for both practicality and style.
The home includes three double bedrooms, each with its own reverse cycle unit, two featuring built-in robes. The family bathroom is tiled to the ceiling and well-appointed with a walk-in shower, bath, vanity, and toilet. A spacious laundry with excellent storage offers convenient access to the attached garage/workshop.
EXTRAS include modern downlights throughout, 4 x reverse cycles in total, a 20-panel solar system, a substantial 60,000L rainwater tank, mains power and water, plus an Envirocycle septic system.
The impressive workshop/garage boasts a full concrete floor, sarking, mezzanine storage, and three high automatic roller doors (approx. 3.4m* clearance), catering perfectly to trades, hobbyists, or additional storage needs. Infrastructure has also been thoughtfully established to allow for easy dual occupancy in the future.
Whether you're a retiree seeking space and self-sufficiency or a young family with equine or livestock interests, this versatile lifestyle property is exceptionally well set up and ready to enjoy.
PARTICULARS
Lot 28/807237
Land Size 2.294ha (5.67ac* approx)
Temora Shire Council Rates $513.35 per annum approx
THE SALE PROCESS
2 Killarney Street is offered for sale by Expression Of Interest, closing Friday 20th March at 10am. VENDORS RESERVE THE RIGHT TO ACCEPT OFFERS PRIOR.
Email a friend
You must be logged in and have a verified email address to use this feature.
Call Agent
-
Jess StewartMiller and James Real Estate

