214 Baraang Drive Broadwater NSW 2472
For Sale $599,000 - PRICE ADJUSTMENT
Under Offer- Property Type House
- Land area approx 809sqm
- Floor area approx 119sqm
- Region Northern Rivers
- Locality Richmond Valley
- Living Area 2
- Garages 2
Broadwater Beauuuuty !
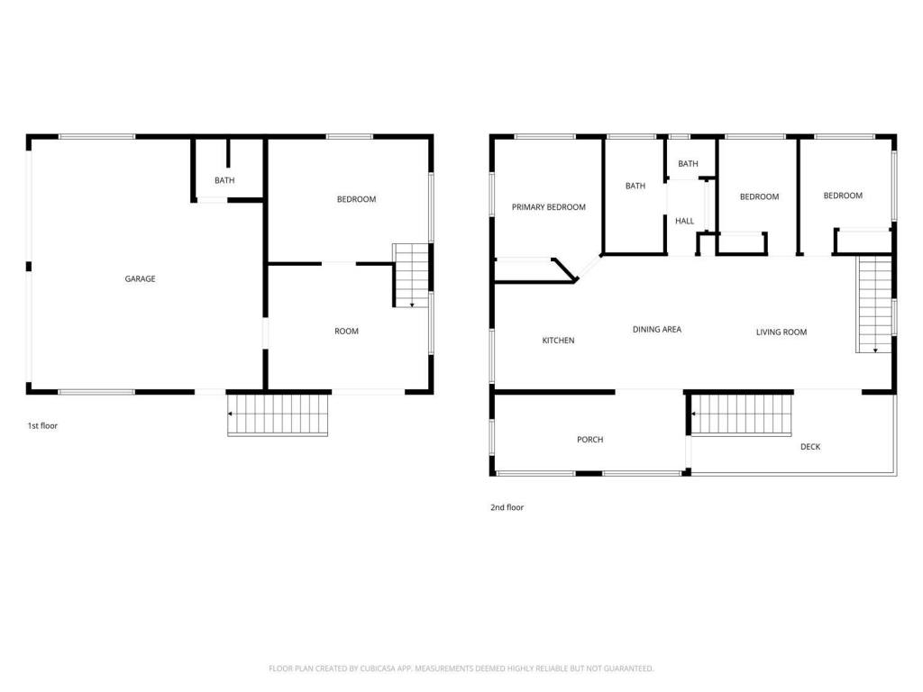
Tucked away in a friendly, up-and-coming village, this charming 2-storey brick home is the perfect blend of peaceful rural living and coastal convenience. Offering a spacious layout with 3 x bedrooms, 2 x bathrooms, rumpus room, internal stairs and double garage, this home is an ideal choice for families looking to enjoy a relaxed lifestyle with room to grow. You'll love the large balcony and adjoining sunroom that overlooks the river and surrounding farmland, providing the perfect spot to unwind, enjoy your morning coffee, or entertain friends while taking in the stunning views.
Outdoor enthusiasts will feel right at home here-just across the street, you can throw in a line and fish right from the river, or head to the nearby boat ramp to launch your boat. Whether you're an avid angler or simply enjoy time on the water, this location is a dream come true!
The property also offers fantastic potential for those looking to add their own personal touch. With solid brick construction and a generous layout, there's plenty of room for renovation and customization. After the rare and unprecedented floods of 2022, the home has been thoughtfully renovated to ensure it's in great shape for years to come.
Currently rented for $500 per week, this home gives you the option to continue renting until you're ready to move in-whether you're planning for a retirement retreat or a coastal lifestyle. It's a fantastic opportunity for investors or anyone looking for a home with future flexibility.
You'll also love the convenient location. Just 15 minutes away, Evans Head offers a laid-back beach town vibe, while the local school is within easy reach for families. Plus, you'll have quick access to the local Broadwater Beach-perfect for relaxing, swimming, or a family picnic by the water.
The Ballina Byron Gateway Airport is just a 30-minute drive away, offering easy access for travel. Ballina itself is only a short 25-minute drive, where you'll find everything you need for shopping, dining, and entertainment. The town boasts large shopping centers, a variety of great food options, and plenty of fun activities-whether you're catching a movie at the cinema, bowling with friends, enjoying the water slide, or relaxing at the parks and beaches. It's all just a quick drive from your doorstep.
This property offers an unbeatable combination of location, potential, and community-making it the perfect opportunity to create your own slice of paradise. Don't miss out! Contact us today to arrange an inspection and see all that this home has to offer!
Property Features
- Concrete patio
- Shed
- Secure Parking
- Workshop
- Rumpus Room
- Balcony
- Deck
- Outdoor Entertaining Area
- Air Conditioning
Email a friend
You must be logged in and have a verified email address to use this feature.
Call Agent
-
Darren WinklerT & W McCormack Real Estate
Call Agent
-
Brent HurstT & W McCormack Real Estate

